Шатун и его назначение в двигателе
Search — Remove Shortcode
Поиск материалов
plg_search_jcomments
Войти
Регистрация
- Главная
- Техничка
- Шатун и его назначение в двигателе
Воскресенье, 28 мая 2017
Шатун является важным элементом и звеном между коленчатым валом и поршнем, и именно от него зависит преобразование поступательного движения поршня во вращательное движения вала.
Постоянные нагрузки, начиная от растяжения и заканчивая сжатием, оказывают не самое лучшее воздействие на шатун, потому к данному элементу выдвигаются самые жесткие требования. Так, шатун должен быть максимально прочным и в меру жестким, но, в то же время, вполне легким. Чаще всего он изготавливается одним из двух методов – горячей штамповкой или литьем из стали.

Шатуны на спортивных моделях авто также нередко выбираются из сплава титана.В зависимости от компоновочной схемы и типа силовой установки, конструкция шатуна может быть различной. Высота силовой установки определятся длиной шатуна. Сам шатун условно можно подразделить на несколько важных составляющих: кривошипную голову, поршневую головку и стержень.
Стержень обладает двутавровым сечением, но так бывает не всегда. В частности, встречаются шатуны с крестообразным, прямоугольным, Н-образным и круглым сечением. К подшипнику поршневой головки масло подается через канал, расположенный в стержне шатуна.
По своему виду поршневая головка напоминает цельную проушину, в которую с натягом внедрена втулка – подшипник скольжения, который обеспечивает скольжение поршневому пальцу. Втулка бывает различных видов, но чаще всего встречаются два вида – бронзовые втулки и биметаллические, в которых комбинируется несколько сплавов (к примеру, сталь и олово, или сталь и свинец). Устройство головки поршня напрямую зависит от того, каков он по своим размерам и какой способ крепления использован.
В некоторых силовых установках применяются специальные шатуны, имеющие трапециевидную форму головки поршня. Это обеспечивает не только уменьшение общей массы шатуна, но и снижение нагрузки на поршневой палец.
Соединение коленчатого вала и шатуна обеспечивается кривошипной головкой. Она чаще всего создается разъемной на большей части двигателей, и это напрямую обусловлено особенностями технологии сборки ДВС. Крышка (низ головки) посредством болтов соединяется с шатуном. Бандажное и штифтовое соединение частей головки также встречается, но значительно реже. Разъем бывает двух видов – косой и прямой. Первый исполнен под углом оси стержня, а второй ей перпендикулярен. В V-образных моторах преимущественно используется косой разъем, а блок силовой установки становится за счет этого значительно компактнее.
Стыковые поверхности кривошипной головки создаются профилированными, что позволяет эффективно препятствовать воздействию поперечных сил. Выделяют несколько типов соединений, среди которых самыми популярными являются замковое и зубчатое.
Но наибольшее распространение получило соединение частей способом сплит-разъема (так называют метод контролируемого раскалывания). Благодаря разлому становится возможным высочайшая степень точности стыковки различных частей.Длина блока цилиндров определяется толщиной кривошипной головки. В особенности данное утверждение справедливо по отношению к W- и V-образным силовым установкам. Чтобы лучше понять это, достаточно отметить, что нижняя головка шатуна мотора W12, которым оснащаются популярные модели Audi, по своей толщине равна 13 мм..
Размещенный в кривошипной головке шатунный подшипник состоит из 2-х вкладышей. Данные вкладыши могут состоять из различного количества слоев, начиная от двух, и заканчивая пятью. Наиболее популярными принято считать двух и трехслойные вкладыши. Состоящий из двух слоев вкладыш в своей основе имеет прочную сталь, а на эту сталь нанесено антифрикционное специальное покрытие. Те же самые компоненты составляют и трехслойный вкладыш, но, помимо них, в него еще включается изоляционная прокладка.

Как отбалансировать шатун своими руками (видео):
Доработка шатунов двигателя ВАЗ (видео):
Как определить менять шатун или нет (видео):
Автор
Super UserКомментируют
Топ блоги
Volvo представила в Женеве свой универсал V90
Что мы знаем об Acura CDX
Механическая коробка переключения передач
Ford Kuga 2016-17
Две новые версии Grand Cherokee 2016
1.
Назначение, конструкция и условия работы шатуна дизеля Д100. Устройство и ремонт шатунно-поршневой группы дизеля Д100Устройство и ремонт шатунно-поршневой группы дизеля Д100
курсовая работа
Шатуны служат для передачи усилий, действующих на поршни, шатунным шейкам коленчатого вала дизеля. Они испытывают большие динамические нагрузки. Шатуны данной марки изготовлены из высококачественной легированной стали методом штамповки. Если шатунная шейка коленчатого вала связана с одним поршнем, то шатун представляет собой фасонный стержень двутаврового сечения с верхней и нижней головками. Нижняя головка разъемная. Крышка шатуна крепится к стержню шатунными болтами из хромированной стали. В средней части болты имеют пояски для центровки шатуна и крышки. Поверхность болтов должна быть полированной без каких-либо концентратов напряжений. Головки болтов круглые с рисками для удержания от проворачивания при затяжке. В верхнюю головку шатуна запрессована втулка, служащая подшипником для поршневого пальца.
Она состоит из двух неразъемных втулок: наружной — стальной, внутренней — бронзовой. У внутренней втулки по всей поверхности прорезаны наклонные канавки, служащие для равномерного распределения масла по поверхности пальца. Втулки головок в средней части имеют кольцевую канавку и отверстие для развода масла. Шатунный подшипник нижней головки шатуна состоит из двух бронзовых вкладышей, залитых слоем баббита толщиной 0,5-0,7 мм.
Около стыков вкладышей с одной и с другой стороны выфрезерованны холодильники для создания масляного клина. Вкладыши шатунных подшипников дизелей типа Д100 невзаимозаменяемые. Вкладыши, устанавливаемые в расточки корпуса шатуна, являются наиболее нагруженными и называются рабочими безканавочными вкладышами. Его внутренняя поверхность не имеет канавки. По среднему сечению вкладыша с обоих концов выфрезерованны карманы в которых просверлены отверстия, соединяющиеся с косыми каналами масло провода шатуна. Косые каналы непосредственно соединены с центральным каналом в стержне шатуна.
Вкладыши, располагающиеся в крышке шатуна, имеют кольцевую канавку, и называется нерабочим канавочным вкладышем. В центре канавки просверлено отверстие.
У вкладыша дизеля 2Д100 оно служит для подачи масла к продольному каналу в шатуне и далее на смазку втулки пальца шатуна. У этого дизеля оба вкладыша канавочные и они взаимозаменяемые.
Опыт эксплуатации показал, что у таких вкладышей возможно возникновение полусухого трения в шатунном подшипнике, вызывающего повреждение вкладышей и задиры шеек осей со всем вытекающими последствиями. Поэтому на дизелях 1 ОД 100 менее нагруженный (нерабочий) вкладыш сделан взаимозаменяемым с вкладышем дизеля 2Д100, а рабочий выполнен безканавочным, обладающим большей несушей способностью.
Верхняя головка шатунов дизеля Д100 имеет шаровую поверхность, к которой притерта ползушка, служащая для приема масла в охлаждающую полость поршня и уплотнения от утечек масла по поверхности, между нею, головкой шатуна и вставкой. Шатун нижнего и верхнего поршней дизеля Д100 невзаимозаменяемые.
Нижний длиннее верхнего на 102,2 мм (для возможности выемки поршней через картер).
Очень высокие требования предъявляются к резьбе шатунных болтов, которая делается по первому классу точности. Резьба обычно метрическая мелкая. Иногда допускается индивидуальная пригонка шатунного болта с гайкой. Замена их в этом случае производится комплектно.
Чтобы облегчить работу нижней наиболее нагруженной части резьбы, применяются гайки с уплотненной резьбой, у которой торцевая полость опущена ниже последнего витка резьбы болта.
Конструктивная форма гайки влияет на распределение нагрузки по виткам резьбы и следовательно на концентрацию напряжений в резьбовом соединении, делая сечение гайки переменным по высоте нагрузки, можно добиться равномерного распределения нагрузки по виткам.
Нижняя, более тонкая часть гайки растягивается вместе с болтом и таким образом разгружает его нижние витки.
Делись добром 😉
Автоматика паротурбинной установки танкеров типа «Крым»
4.
Условия работы дизеляСудовые дизельные установки состоят из двигателя и систем, обеспечивающих его функционирование: топливоподачу, воздухоподачу, смазывание, охлаждение, пуск, реверс, ручное и автоматическое управление…
Генератор постоянного тока ГП-311
1. Назначение и условия работы тягового генератора постоянного тока ГП311
Тяговые генераторы предназначены для преобразования механической энергии дизеля в электрическую питанию тяговых двигателей непосредственно или через выпрямительную установку…
Организации технического обслуживания и ремонта главного контроллера ЭКГ-8Ж
1.1 Назначение, конструкция и условия работы главного контроллера ЭКГ-8Ж
Главный контроллер ЭКГ-8Ж предназначен для переключения под нагрузкой ступеней вторичной обмотки тягового трансформатора с целью изменения напряжения на тяговых двигателях…
Проект участка сборки и ремонта двигателей авторемонтного предприятия на 1600 автомобилей ГАЗ-53А
3.2 Назначение и условия работы восстанавливаемой детали
Коленчатый вал является высоконагруженной деталью двигателя.
В процессе эксплуатации двигатель машины подвержен различным нагрузкам, в том числе и неблагоприятным, это пуск двигателя в холодных условиях, не качественное смазочное масло…
Рабочие процессы рулевого привода автомобиля ГАЗ–3308
1.1 Назначение и условия работы
Рулевой привод совместно с рулевым механизмом передает управляющее усилие от водителя непосредственно к колесам и обеспечивает этим поворот управляемых колес на задаваемый угол…
Разработка технологии восстановления клапана автомобиля ГАЗ-24
1.1 Назначение и условия работы двигателя
На автомобили «Волга» устанавливаются четырёхцилиндровые четырёхтактные карбюраторные двигатели двух модификаций (24Д и 2401) с рядным расположением цилиндров и жидкостным охлаждением. Эти двигатели отличаются только степенью сжатия…
Разработка технологии капитального ремонта мостового крана
1.5 Назначение, конструкция, принцип работы мостового крана. Техническая характеристика
Мостовой кран — подъемный кран, предназначенный для подъема, опускания и горизонтального перемещения различных грузов.
По конструкции моста краны (см. рисунок 7) разделяются на двухбалочные и однобалочные — кран-балки…
Разработка технологического процесса ремонта поршня дизеля Д49
1.1 Назначение, конструкция и условия работы поршня дизеля Д49 на тепловозе
Шатунно-поршневая группа вместе с коленчатым валом являются основным рабочим механизмом поршневого двигателя внутреннего сгорания. Поступательное движение поршня преобразуется во вращательное движение коленчатого вала при помощи шатуна…
Спроектировать участок по ремонту двигателей и разработать технологический процесс и восстановления коленчатого вала
3.1 Назначение, конструктивные особенности, условия работы заданной детали
Коленчатый вал — одна из основных деталей двигателя, определяющая вместе с другими деталями цилиндро-поршневой группы его ресурс. Коленчатые валы двигателей внутреннего сгорания являются кривошипом кривошипно-шатунного механизма…
Судовые двигатели внутреннего сгорания
1. Назначение, конструкция, условия работы, материалы блоков и блок-картеров судовых ДВС
Современный дизель представляет собой сложную тепловую машину, состоящую из определенных групп деталей, механизмов, систем и устройств.
Современный двигатель состоит из неподвижных деталей двигателя, которые называются остовом дизеля…
Технологический процесс восстановления вилки включения гидронасоса
1.1 Функциональное назначение, техническая характеристика и условия работы агрегата
Привод гидронасоса предназначен для передачи крутящего момента к гидронасосу, а также для включения и отключения его. Крутящий момент подаётся на зубчатое колесо, находящееся в постоянном зацеплении с шестерней…
Технологический процесс восстановления вилки включения гидронасоса
2.1 Функциональное назначение, технические требования и условия работы детали
Вилка включения гидронасоса предназначена для перемещения муфты включения гидронасоса в осевом направлении. Она крепится на оси рычага с помощью болта и фиксирующей втулки. Соединение неподвижное…
Технология ремонта масляного насоса
1. Назначение и условия работы масляного насоса
Для циркуляции смазки под давлением на дизеле установлен шестеренчатый масляный насос.
Чугунный корпус насоса имеет два патрубка с фланцами. К одному из них масло подводится из поддизельной рамы, а по другому оно нагнетается в масляную систему…
Технология ремонта полоза токоприёмника П-3 электровоза ВЛ-8 в объёме подъёмочного ремонта ТР-3
1. Назначение, конструкция и условия работы ремонтируемого узла
Полоз токоприёмника является одной из самых важных частей токоприёмника. Он устанавливается на токоприёмнике электровоза и предназначен для крепления токосъёмных вставок. Токосъёмные вставки являются сменными токопроводящими элементами…
Устройство и ремонт шатунно-поршневой группы дизеля Д100
2. Описание характеристик неисправностей и износа деталей сборочной единицы — шатуна дизеля Д100
Шатуны и шатунные болты с трещиной в любом месте — бракуют и заменяют. Производить любые сварочные работы на шатуне категорически запрещено. У верхней головки трещина первоначально возникает со стороны отверстия под втулку…
Шатун и все,что нужно о нем знать.

Nevada 1976Шатун и все,что нужно о нем знать. 0 Comment
Содержание статьи
Шатун – это соединительная деталь между коленвалом и поршнем, основное назначение которой является преобразование поступательных движений поршня внутри цилиндра во вращательные движения коленчатого вала, с которого вращение передается на колеса автомобиля через трансмиссию.
Материалы для производства шатунов
Шатуны производятся двумя способами — штамповкой из высокопрочной стали или литьем из чугуна. В дизелях применяются шатуны, изготовленные из легированной стали методом ковки или горячей штамповки.
В некоторых видах бензиновых двигателей устанавливаются шатуны, производимые из порошкообразных металлов методом спекания.
Из-за напряженных условий работы данная деталь КШМ должна отличаться надежностью, долговечностью и износостойкостью.
Особое внимание уделяется не только изготовлению шатунов, но и болтов крепления.
Для производства болтов используются легированные виды стали, обладающие высоким коэффициентом текучести, что в несколько раз выше, чем у высокоуглеродистых сталей.
Стержень шатуна
У большинства производителей автомобилей, ориентированных на массовый рынок, стержень шатуна расширяется к его нижней головке и имеет двутавровую форму. У дизельных двигателей шатуны более массивны и прочны, чем у бензиновых двигателей. Некоторые двигатели оснащаются шатунами и других форм, к примеру, в спортивных авто, в которых имеются алюминиевые шатуны. Обычно, стержень шатуна имеет внутренний просверленный канал для подачи масла в верхнюю головку.
Иногда, этот канал также ведёт и к нижней головке, откуда масло разбрызгивается в полости цилиндра и поршня. Все шатуны двигателя должны иметь одинаковый вес, чтобы вибрации от двигателя были минимальными. Кроме того, совпадать должен не только вес всего шатуна, но и вес верхних головок и нижних головок. Для достижения одинакового веса используют очень точные весы, а потом подгоняют вес по самому лёгкому шатуну, аккуратно снимая часть металла с бобышек (металлические наплывы на поверхности шатунов) на головках и на стержне шатуна.
Строение шатуна
Шатун имеет простое устройство, которое состоит из следующих элементов:
- стержня;
- поршневой головки;
- кривошипной головки.
Стержень представляет собой составной элемент шатуна, имеющий преимущественно двутавровое сечение. Некоторые модели имеют круглое, крестообразное, Н-образное или прямоугольное сечение шатунного стержня. В стержне присутствует канал, предназначенный для транспортировки масла к подшипнику головки поршня.
поршневая головка — это проушина с цельной структурой, внутри которой расположена втулка. Втулка представляет собой скользящий подшипник, предназначенный для вращения пальца поршня. Материал изготовления втулки: бронза или сталь с оловом или свинцом. Структура поршневой головки зависит от размера поршневого пальца, а также от метода его крепления. Для того, чтобы уменьшить вес шатуна и, как следствие, нагрузку на поршневой палец, на некоторых автомобильных двигателях устанавливают шатуны с поршневой головкой в виде трапеции.
Кривошипная головка — механизм, предназначенный для соединения шатуна и коленчатого вала друг с другом. Большая часть шатунов оснащена разъемной кривошипной головкой, это объясняется способом сборки двигателя внутреннего сгорания. Крышка головки, расположенная в нижней части, прикрепляется болтами к шатуну. Иногда применяют бандажное или штифтовое крепление составных элементов головки. Разъем кривошипной головки бывает двух видов: прямой (расположен под углом 90 градусов относительно оси стержня), косой (под определенным углом к оси). Косой разъем используется для уменьшения размеров двигателя V-образной формы.
Профилированные стыковые поверхности головки обеспечивают препятствие при воздействии поперечных сил. При этом соединение может быть замковым или зубчатым. Самым современным и популярным является соединение, изготовленное методом раскалывания. Оно называется сплит-разъемом.
Внутри кривошипной головки шатуна расположен подшипник, который состоит из двух многослойных вкладышей.
Количество слоев может варьироваться от двух до пяти в каждом. Наиболее широко используются вкладыши из двух и трех слоев. Двухслойный вкладыш изготовлен из стали с антифрикционной поверхностью. Трехслойный также состоит из стали, а антифрикционное покрытие разделяется специальной прокладкой.
Снятие
Отдельно снять шатун с двигателя не получится, это возможно сделать только в сборе с установленным на шатун поршнем в сборе с пальцем и поршневыми кольцами. В некоторых случаях можно снять шатунно-поршневую группу без снятия двигателя с автомобиля. Иногда это выгодно в целях экономии времени, но всё же для обеспечения необходимой для проведения этого ремонта чистоты, без которой качественно выполнить ремонт затруднительно, лучше подобный ремонт выполнять на снятом двигателе. Тем более, что для выполнения этого ремонта всё равно придётся снимать головку блока цилиндров и масляный поддон двигателя.
А при снятии головки блока цилиндров всё равно придётся снимать или отсоединять большинство жгутов проводов и вакуумных трубок.
Перед снятием шатунно-поршневой группы, следуя указаниям Руководства по ремонту автомобиля, снимите головку блока цилиндров и масляный поддон двигателя. Как снимать шатунно-поршневую группу обычно подробно описывается в Руководстве по ремонту автомобиля. Тут даются просто некоторые замечания, которые не всегда присутствуют в руководстве.
Перед откручиванием гаек (болтов) крепления крышки шатуна определите место нахождения меток, указывающих в какой цилиндр устанавливается данный шатун с поршнем и направление установки крышки относительно шатуна. Если подобные метки не обнаружены, что бывает крайне редко, нанесите их самостоятельно удобным способом. Несмотря на то, что крышка шатуна крепится всего двумя гайками (болтами), откручивайте гайки постепенно и поочерёдно. При чем при первом ослаблении затяжки гайки гайку допускается повернуть не более чем на ¼ оборота, а лучше меньше.
После откручивания гаек снимите крышку шатуна. Примете меры, исключающие падение вкладыша из крышки шатуна. Шатунные болты изготавливаются из очень прочной стали, поэтому для уменьшения вероятности повреждения полированной поверхности шатунной шейки коленчатого вала и поверхности стенок цилиндров на шатунные болты необходимо установить специальные защитные и направляющие приспособления. При отсутствии подобных приспособлений, что бывает чаще всего, наденьте на болты куски шлангов из мягкого материала подходящего диаметра.
Для извлечения поршня из цилиндра установите коленчатый вал так, чтобы ось шатунной шейки совпала с продольной осью цилиндра. Примите меры предосторожности, исключающие падение поршня в сборе с шатуном. Поддерживая поршень снизу, лёгкими ударами деревянной ручки молотка по шатуну или болтам извлеките поршень из отверстия цилиндра.
Укладывайте все снятые детали так, чтобы была возможность установки этих деталей на то место, где они стояли до снятия. Это относится также к гайкам или вкладышам, даже если принято решение о замене вкладышей.
По состоянию вкладышей можно определить некоторые неисправности двигателя. Укладывайте снятые детали только на чистую поверхность.
Установка
Проведите тщательный осмотр и необходимую дефектовку всех снятых деталей.
Соедините шатун с поршнем при помощи поршневого пальца и установите на поршень поршневые кольца. Некоторые советы по установке этих деталей даны в соответствующих статьях. Одновременно соберите все шатунно-поршневые группы двигателя.
Ещё раз проверьте, что замки поршневых колец установлены в соответствии с указаниями в Руководстве, а в случае отсутствия таких указаний установите замки соответствии с рекомендациями, данными в главе «Установка поршневых колец».
Обильно смажьте поршень, поршневые кольца и стенки цилиндров чистым моторным маслом. Смажьте внутреннюю поверхность специального приспособления для сжатия поршневых колец
Установите на поршень специальное приспособление и сожмите кольца. Иногда необходимо слегка обстучать приспособление молотком с пластмассовым бойком.
Установите на болты крышки крепления шатуна защитные приспособления или наденьте на болты отрезки шлангов. Осторожно вставьте шатун в отверстие цилиндра. Шатун с поршнем допускается устанавливать только в одном направлении, обычно направление установки указывается специальной меткой на днище поршня. Опустите поршень в цилиндр, пока специальное приспособление не коснётся поверхности блока цилиндров. Прижмите приспособление к поверхности блока цилиндров и нанесите несколько очень лёгких ударов торцом деревянной ручки молотка по всей окружности верхней кромки приспособления. Прижимая приспособление к поверхности блока цилиндров, лёгкими равномерными ударами деревянной ручки молотка, переместите поршень в отверстие цилиндра.
Выровняйте шатун относительно шейки коленчатого вала. Тщательно протрите поверхность шатуна, на которую устанавливается вкладыш подшипника. Убедитесь в идеальной чистоте этой поверхности. Осторожно установите в шатун ранее подобранный для этого цилиндра верхний вкладыш шатунного подшипника.
Верхний вкладыш может отличаться от нижнего отсутствием канавки для масла. Верхний или нижний вкладыш определяется для нормального положения двигателя, поскольку при установке подсоединении шатуна на снятом двигателе двигатель, чаще всего находится в перевёрнутом состоянии, верхний вкладыш будет расположен внизу.
Если повторно устанавливаются снятые при разборке вкладыши, их необходимо установить на то место, в котором они находились до снятия. Не наносите масло на постель подшипника или на наружную поверхность вкладыша. Совместите, если имеется, фиксирующий усик вкладыша с соответствующей выемкой в шатуне.
Тщательно протрите внутреннюю поверхность крышки шатуна и наружную поверхность нижнего вкладыша. Не нанося масла на вкладыш и крышку, установите нижний вкладыш в крышку шатуна. Совместите усик крышки с пазом. Нанесите обильный слой чистого моторного масла на шатунную шейку коленчатого вала и на внутренние поверхности обоих вкладышей. Некоторые производители не рекомендуют наносить масло пальцем, а предлагают пользоваться для этого только специальной маслёнкой.
Ещё раз убедитесь, что устанавливаете крышку шатуна именно этого цилиндра и устанавливаете её в правильном направлении. Установите крышку с установленным вкладышем на болты. Прижимая крышку к шатуну, закрутите гайки от руки. Затягивайте гайки в строгом соответствии с указаниями руководства. При этом обязательно используйте динамометрический ключ, и если необходимо специальный транспортир для доворота гайки на установленный угол.
Назначение, устройство, принцип действия кривошипно-шатунного механизма (КШМ). Тема 2.1.2
Назначение, устройство, принцип действия кривошипношатунного механизма (КШМ)
Кривошипно-шатунный механизм предназначен для преобразования возвратнопоступательного движения поршня во вращательное движение коленчатого вала.
Детали кривошипно-шатунного механизма можно разделить на:
неподвижные — картер, блок цилиндров, цилиндры, головка блока
цилиндров, прокладка головки блока и поддон.
Обычно блок цилиндров
отливают вместе с верхней половиной картера, поэтому иногда его
называют блок-картером.
подвижные — поршни, поршневые кольца и пальцы, шатуны, коленчатый
вал и маховик.
Блок-картер — основной элемент остова двигателя. Он подвергается значительным силовым
и тепловым воздействиям и должен обладать высокой прочностью и жесткостью. В блоккартере устанавливают цилиндры, опоры коленчатого вала, некоторые устройства механизма
газораспределения, различные узлы смазочной системы с ее сложной сетью каналов и другое
вспомогательное оборудование. Блок-картер изготавливают из чугуна или алюминиевого
сплава литьем.
Цилиндры представляют собой направляющие элементы ⭐ кривошипно-шатунного механизма.
Внутри их перемещаются поршни. Длина образующей цилиндра определяется ходом поршня и
его размерами. Цилиндры работают в условиях резко изменяющегося давления в надпоршневой
полости. Их стенки соприкасаются с пламенем и горячими газами, имеющими температуру до
1500… 2 500 °С.
Цилиндры должны быть прочными, жесткими, термо- и износостойкими при ограниченном
количестве смазки. Кроме того, материал цилиндров должен обладать хорошими литейными
свойствами и легко обрабатываться на станках. Обычно цилиндры изготавливают из
специального легированного чугуна, но могут применяться также алюминиевые сплавы и сталь.
Внутреннюю рабочую поверхность цилиндра, называемую его зеркалом, тщательно
обрабатывают и покрывают хромом для уменьшения трения, повышения износостойкости и
долговечности.
В V-образном двигателе цилиндры одного ряда могут быть несколько смещены относительно
цилиндров другого ряда. Это связано с тем, что на каждом кривошипе коленчатого вала крепятся
два шатуна, один из которых предназначен для поршня правой, а другой — для поршня левой
половины блока.
На тщательно обработанную верхнюю плоскость блока цилиндров устанавливают головку
блока, которая закрывает цилиндры сверху. В головке над цилиндрами выполнены углубления,
образующие камеры сгорания.
У двигателей жидкостного охлаждения в теле головки блока
предусмотрена рубашка охлаждения, сообщающаяся с рубашкой охлаждения блока цилиндров.
При верхнем расположении клапанов в головке имеются гнезда для них, впускные и выпускные
каналы, отверстия с резьбой для установки свечей зажигания (у бензиновых двигателей) или
форсунок (у дизелей), магистрали смазочной системы, крепежные и другие вспомогательные
отверстия. Материалом для головки блока обычно служит алюминиевый сплав или чугун.
Плотное соединение блока цилиндров и головки блока обеспечивается с помощью болтов или
шпилек с гайками. Для герметизации стыка с целью предотвращения утечки газов из
цилиндров и охлаждающей жидкости из рубашки охлаждения между блоком цилиндров и
головкой блока устанавливается прокладка. Она обычно изготавливается из асбестового
картона и облицовывается тонким стальным или медным листом. Иногда прокладку с обеих
сторон натирают графитом для защиты от пригорания.
Нижняя часть картера, предохраняющая детали кривошипно-шатунного и других
механизмов двигателя от загрязнения, обычно называется поддоном. В двигателях
сравнительно малой мощности поддон служит также резервуаром для моторного масла.
Поддон чаще всего выполняется литым или изготавливается из стального листа штамповкой.
Для устранения подтекания масла между блок-картером и поддоном устанавливается
прокладка (на двигателях небольшой мощности для уплотнения этого стыка часто
используется герметик — «жидкая прокладка»).
Поршневую группу кривошипно-шатунного механизма образует поршень в сборе с
комплектом компрессионных и маслосъемных колец, поршневым пальцем и деталями его
крепления. Ее назначение заключается в том, чтобы во время рабочего хода воспринимать
давление газов и через шатун передавать усилие на коленчатый вал, осуществлять другие
вспомогательные такты, а также уплотнять надпоршневую полость цилиндра для
предотвращения прорыва газов в картер и проникновения в него моторного масла.
Поршень представляет собой металлический стакан сложной формы, устанавливаемый в цилиндре днищем
вверх. Он состоит из двух основных частей. Верхняя утолщенная часть называется головкой, а нижняя
направляющая часть — юбкой. Головка поршня содержит днище 4 (рис. а) и стенки 2. В стенках проточены
канавки 5 для компрессионных колец. Нижние канавки имеют дренажные отверстия 6 для отвода масла. Для
увеличения прочности и жесткости головки ее стенки снабжены массивными ребрами 3, связывающими
стенки и днище с бобышками, в которых устанавливается поршневой палец. Иногда оребряют также
внутреннюю поверхность днища.
Юбка имеет более тонкие стенки, чем у головки. В ее средней части расположены бобышки с отверстиями.
Поршневые кольца обеспечивают плотное подвижное соединение поршня с цилиндром. Они
предотвращают прорыв газов из надпоршневой полости в картер и попадание масла в камеру
сгорания. Различают компрессионные и маслосъемные кольца.
Компрессионные кольца (два или три) устанавливают в верхние канавки поршня.
Они имеют
разрез, называемый замком, и поэтому могут пружинить. В свободном состоянии диаметр
кольца должен быть несколько больше диаметра цилиндра. При введении в цилиндр такого
кольца в сжатом состоянии оно создает плотное соединение. Для того чтобы обеспечить
возможность расширения установленного в цилиндре кольца при нагревании, в замке должен
быть зазор 0,2…0,4 мм. С целью обеспечения хорошей приработки компрессионных колец к
цилиндрам часто применяют кольца с конусной наружной поверхностью, а также
скручивающиеся кольца с фаской на кромке с внутренней или наружной стороны. Благодаря
наличию фаски такие кольца при установке в цилиндр перекашиваются в сечении, плотно
прилегая к стенкам канавок на поршне.
Маслосъемные кольца (одно или два) удаляют масло со стенок цилиндра, не позволяя ему
попадать в камеру сгорания. Они располагаются на поршне под компрессионными кольцами.
Обычно маслосъемные кольца имеют кольцевую канавку на наружной цилиндрической
поверхности и радиальные сквозные прорези для отвода масла, которое по ним проходит к
дренажным отверстиям в поршне.
Чаще всего для их изготовления применяют высокосортный легированный чугун. Верхние
компрессионные кольца, работающие в наиболее тяжелых условиях, обычно покрывают с
наружной стороны пористым хромом. Составные маслосъемные кольца изготавливают из
легированной стали.
Поршневой палец служит для шарнирного соединения поршня с шатуном. Он представляет собой
трубку, проходящую через верхнюю головку шатуна и установленную концами в бобышки
поршня. Крепление поршневого пальца в бобышках осуществляется двумя стопорными
пружинными кольцами, расположенными в специальных канавках бобышек. Такое крепление
позволяет пальцу (в этом случае он называется плавающим) проворачиваться. Вся его поверхность
становится рабочей, и он меньше изнашивается. Ось пальца в бобышках поршня может быть
смещена относительно оси цилиндра на 1,5…2,0 мм в сторону действия большей боковой силы.
Благодаря этому уменьшается стук поршня в непрогретом двигателе.
Поршневые пальцы изготавливают из высококачественной стали.
Для обеспечения высокой
износоустойчивости их наружную цилиндрическую поверхность подвергают закалке или
цементации, а затем шлифуют и полируют.
Поршневая группа состоит из довольно большого числа деталей (поршень, кольца,
палец), масса которых по технологическим причинам может колебаться; в некоторых
пределах. Если различие в массе поршневых групп в разных цилиндрах будет
значительным, то при работе двигателя возникнут дополнительные инерционные
нагрузки. Поэтому поршневые группы для одного двигателя подбирают так, чтобы они
несущественно отличались по массе (для тяжелых двигателей не более чем на 10 г).
Шатунная группа кривошипно-шатунного механизма состоит из:
— шатуна
— верхней и нижней головок шатуна
— подшипников
— шатунных болтов с гайками и элементами их фиксации
Шатун соединяет поршень с кривошипом коленчатого вала и, преобразуя возвратнопоступательное движение поршневой группы во вращательное движение коленчатого вала,
совершает сложное движение, подвергаясь при этом действию знакопеременных ударных
нагрузок.
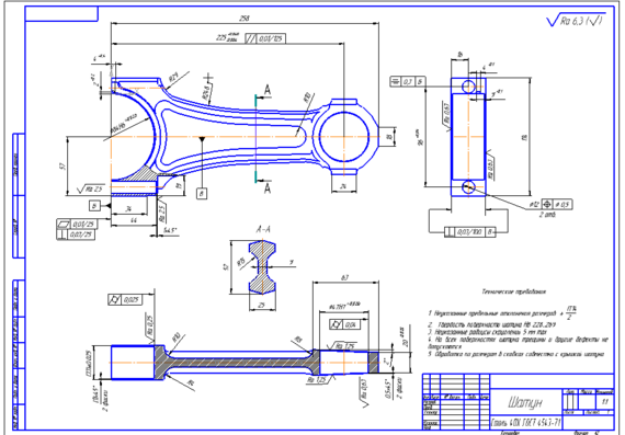
Шатун состоит из трех конструктивных элементов: стержня 2, верхней (поршневой)
головки 1 и нижней (кривошипной) головки 3. Стержень шатуна обычно имеет двутавровое
сечение. В верхнюю головку для уменьшения трения запрессовывают бронзовую втулку 6 с
отверстием для подвода масла к трущимся поверхностям. Нижнюю головку шатуна для
обеспечения возможности сборки с коленчатым валом выполняют разъемной. У бензиновых
двигателей разъем головки обычно расположен под углом 90° к оси шатуна. У дизелей нижняя
головка шатуна 7, как правило, имеет косой разъем. Крышка 4 нижней головки крепится к
шатуну двумя шатунными болтами, точно подогнанными к отверстиям в шатуне и крышке для
обеспечения высокой точности сборки. Чтобы крепление не ослабло, гайки болтов стопорят
шплинтами, стопорными шайбами или контргайками. Отверстие в нижней головке
растачивают в сборе с крышкой, поэтому крышки шатунов не могут быть
взаимозаменяемыми.
Для уменьшения трения в соединении шатуна с коленчатым валом и облегчения ремонта
двигателя в нижнюю головку шатуна устанавливают шатунный подшипник, который
выполнен в виде двух тонкостенных стальных вкладышей 5, залитых антифрикционным
сплавом.
Внутренняя поверхность вкладышей точно подогнана к шейкам коленчатого вала.
Для фиксации вкладышей относительно головки они имеют отогнутые усики, входящие в
соответствующие пазы головки. Подвод масла к трущимся поверхностям обеспечивают
кольцевые проточки и отверстия во вкладышах.
Для обеспечения хорошей уравновешенности деталей кривошипно-шатунного механизма
шатунные группы одного двигателя (как и поршневые) должны иметь одинаковую массу с
соответствующим ее распределением между верхней и нижней головками шатуна.
Коленчатый вал, соединенный с поршнем посредством шатуна, воспринимает действующие
на поршень силы. На нем возникает вращающий момент, который затем передается на
трансмиссию, а также используется для приведения в действие других механизмов и
агрегатов. Под влиянием резко изменяющихся по величине и направлению сил инерции и
давления газов коленчатый вал вращается неравномерно, испытывая крутильные колебания,
подвергаясь скручиванию, изгибу, сжатию и растяжению, а также воспринимая тепловые
нагрузки.
Поэтому он должен обладать достаточной прочностью, жесткостью и
износостойкостью при сравнительно небольшой массе.
Конструкции коленчатых валов отличаются сложностью. Их форма определяется числом и
расположением цилиндров, порядком работы двигателя и числом коренных опор.
К шатунным шейкам коленчатого вала присоединяют нижние головки шатунов. Коренными
шейками вал устанавливают в подшипниках картера двигателя. Соединяются коренные и
шатунные шейки при помощи щек. Плавный переход от шеек к щекам, называемый галтелью,
позволяет избежать концентрации напряжений и возможных поломок коленчатого вала.
Противовесы предназначены для разгрузки коренных подшипников от центробежных сил,
возникающих на кривошипах вала во время его вращения. Их, как правило, изготавливают как
единое целое со щеками.
Для обеспечения нормальной работы двигателя к рабочим поверхностям коренных и
шатунных шеек необходимо подавать моторное масло под давлением. Масло поступает из
отверстий в картере к коренным подшипникам.
Затем оно через специальные каналы в
коренных шейках, щеках и шатунных шейках попадает к шатунным подшипникам. Для
дополнительной центробежной очистки масла в шатунных шейках имеются
грязеуловительные полости, закрытые заглушками.
Коленчатые валы изготавливают методом ковки или литья из среднеуглеродистых и
легированных сталей (может применяться также чугун высококачественных марок). После
механической и термической обработки коренные и шатунные шейки подвергают
поверхностной закалке (для повышения износостойкости), а затем шлифуют и полируют.
После обработки вал балансируют, т. е. добиваются такого распределения его массы
относительно оси вращения, при котором вал находится в состоянии безразличного
равновесия.
В коренных подшипниках применяют тонкостенные износостойкие вкладыши,
аналогичные вкладышам шатунных подшипников. Для восприятия осевых нагрузок и
предотвращения осевого смещения коленчатого вала один из его коренных подшипников
(обычно передний) делают упорным.
1 — носок; 2 — шатунная шейка; 3 — коренная шейка; 4 — щека; 5 — противовес; 6 — хвостовик с фланцем
Маховик крепится к фланцу хвостовика коленчатого вала. Он представляет собой тщательно
сбалансированный чугунный диск определенной массы. Кроме обеспечения равномерного
вращения коленчатого вала маховик способствует преодолению сопротивления сжатия в
цилиндрах при пуске двигателя и кратковременных перегрузок, например, при трогании ТС с
места. На ободе маховика закреплен зубчатый венец для пуска двигателя от стартера.
Поверхность маховика, которая соприкасается с ведомым диском сцепления, шлифуют и
полируют
Шатун и поршень
Шатун поршня предназначен для передачи энергии от поршня к коленвалу. Первые упоминания о применении подобных устройств относятся к концу третьего столетия н.э. Механизмы, похожие на современные шатуны, использовались на лесопилках Римской империи в Малой Азии. Они преобразовывали вращательное движение водяного колеса в поступательное для привода пилы.
Аналогичные устройства археологи находили при раскопках в Эфесе, которые относятся к VI веку н.э.
В процессе работы шатун совершает два вида движения: возвратно-поступательное, где верхняя головка соединена с поршнем, и круговые, где нижняя головка соединяется с коленчатым валом.
Именно поэтому при эксплуатации двигателя данная деталь находится под постоянным воздействием высоких нагрузок.
Шатун состоит из следующих элементов:
Соединение верхней головки с поршнем обеспечивает поршневой палец. Сама головка имеет неразборную цельную конструкцию. Поршневой палец может быть фиксированным и плавающим.
В первом случае в головке шатуна проделывается цилиндрическое отверстие, которое изготовлено с очень высокой точностью — для того, чтобы обеспечить необходимый уровень натяга при соединении с пальцем.
В плавающих поршневых пальцах в верхнюю головку впрессовываются специальные биметаллические или бронзовые втулки.
Но бывают двигатели, где эти втулки отсутствуют, а сам палец свободно вращается в отверстии головки шатуна. Чтобы подобная деталь работала нормально, следует обеспечить подвод смазки.
Верхняя головка шатуна работает в условиях очень высоких нагрузок, поэтому она имеет трапециевидную форму. Это нужно для того, чтобы увеличить опорную поверхность при работе поршня.
Нижняя головка соединяет шатун с коленчатым валом. Большинство шатунов имеет разъемную кривошипную головку, что определяется способом сборки ДВС. Крышка головки крепится к шатуну при помощи болтов, но в некоторых случаях возможно использование штифтов или бандажного крепления.
Для каждого шатуна можно использовать лишь ту крышку, которая была установлена на заводе, так как она имеет определенный размер и вес. Поэтому при ремонте нельзя менять данный элемент.
По расположению стержня разъем головки может быть прямым (90° относительно оси стержня) и косым (под определенным углом к оси).
Последний вид применяется для V-образных двигателей для уменьшения их размеров.
В нижнюю часть шатунной головки также устанавливаются подшипники скольжения, которые схожи с коренными вкладышами коленвала. Их производят из стальной ленты, внутренняя поверхность которой обработана антифрикционным материалом, обладающим высокой износостойкостью.
Наиболее популярным антифрикционным покрытием для подшипников скольжения шатунов является MODENGY Для деталей ДВС.
Оно эффективно снижает износ и трение, предотвращает задир поверхностей и заклинивание поршня в цилиндре. Материал устойчив к длительному воздействию моторного масла, предотвращает скачкообразное движение и в течение некоторого времени сохраняет работоспособность двигателя в режиме масляного голодания.
Отверждение покрытия возможно как при комнатной температуре, так и при нагреве. Удобная аэрозольная упаковка упрощает процесс нанесения благодаря тщательно настроенным параметрам сопла распылительной головки.
MODENGY для деталей ДВС доступно в наборе со специальным очистителем-активатором MODENGY. Предварительная обработка деталей Очистителем-активатором гарантирует отличную адгезию покрытия и его длительный срок службы.
Подробнее о нанесении покрытия смотрите ниже.
Большинство автопроизводителей изготавливают шатуны таким образом, что их стержень расширяется от верхней головки к нижней, а также имеет двутавровую форму. Следует отметить, что шатуны дизельных двигателей более прочны и массивны, чем у бензиновых агрегатов. В спортивных автомобилях шатуны изготавливают из алюминия. Это нужно для снижения массы транспортного средства.
Все шатуны в двигателе должны одинаково весить, так как в противном случае вибрации от работы ДВС будут сильными.
Это касается не только всего шатуна, но и обеих головок детали. Чтобы выровнять вес шатунов их для начала взвешивают на очень точных весах, а затем, ориентируясь на самый легкий шатун, аккуратно снимают часть металла с бобышек на стержне и головках детали.
Перед каждым автопроизводителем стоит две задачи: сделать массу деталей КШМ ниже и уменьшить затраты на производство. Но, так как шатуны работают под воздействием высоких нагрузок, уменьшение его массы может негативно сказаться на прочности.
При массовом производстве шатуны изготавливают методом литься из специального чугуна. Это приемлемо для бензиновых серийных двигателей, так как при таком подходе достигается практически идеальный баланс между прочностью детали и ее себестоимостью.
В дизельных силовых агрегатах нагрузки больше, поэтому использовать подход, аналогичный с бензиновыми двигателями неуместно. В связи с этим для тяжелонагруженных шатунов используется метод горячей штамповки или горячей ковки, а в качестве конструкционного материала выступает легированная сталь.
Такие детали намного прочнее литых, но их производство гораздо дороже.
Для автомобилей с мощными двигателями и спортивных моделей используются алюминиевые и титановые сплавы.
Благодаря такому решению повышается оборотистость двигателя и снижается вес всего агрегата. Титановые и алюминиевые шатуны весят на 50 % меньше, чем детали из чугуна и стали.
Немаловажно значение играет конструкционный материал болтов крепления крышки шатунной головки. Для их производства применяется высоколегированная сталь, предел текучести которой в 2-3 раза выше, чем у обычной углеродистой стали.
Неисправности из-за которых выходит из строя шатун в большинстве своем происходят из-за износа деталей. Верхнюю головку ремонтируют редко, а ресурс втулки сопоставим с ресурсом самого двигателя. Но, в случае гидроудара, соударения поршня с головкой блока или попадания в камеру посторонних предметов и абразивных веществ стержень шатуна может изогнуться или вовсе разрушиться.
Из строя также выходят подшипники нижней головки. Это происходит из-за недостаточного смазывания детали. Признаками такой неисправности является замятие вкладышей, удлинение шатунных болтов, изменения окраски в шатунной головке (темно-синяя) и частей вкладышей (черные тона). Если смазывание протекало нормально, то причиной поломки может быть износ или разрушение самих подшипников.
Помимо этого, к причинам выхода из строя шатуна является недостаточный уровень масла в ДВС, засорение фильтрующего элемента, несвоевременная замена масла в двигателе, попадание в цилиндр абразивов и загрязнений, потеря маслом рабочих характеристик.
Шатуны подлежат ремонту при обнаружении:
Перед началом ремонтных работ деталь нужно тщательно осмотреть. Для начала следует измерить овал и диаметр, а также зазоры в нижней и верхней части шатуна при помощи нутрометра. Если показатели в норме, то замена шатуна не потребуется.
Если отверстия головок непараллельны, это свидетельствует о деформации стержня, которая приводит к перекосу цилиндра. О такой неисправности может подсказать громкий рев двигателя при работе на высоких оборотах. В этом случае происходит износ стенок цилиндра, поршня, головки шатуна и коленвала. Еще одним способом проверки детали на деформацию является установка шатуна на специальную проверочную плиту и его раскачка.
После этого можно приступать к ремонту. Помните, что качество работ очень зависит от хорошего специального оборудования.
Для достижения нужной геометрии зазора нижнего шатуна необходимо снять небольшое количество металла с поверхности крышки головки. После этой процедуры крышка устанавливается на штатное место и затягивается болтами.
Отверстие головки растачивается исходя из заданного размера. Для этого нужно воспользоваться универсальным или расточным станком. После расточки требуется выполнение хонингования.
При увеличении зазора под поршневой палец следует заменить бронзовую втулку под верхнюю головку. Новая деталь примет нужный размер. Главное, чтобы отверстия втулки и головки совместились, так как в противном случае масло, выходящее из поршня, не сможет попасть на поршневой палец.
Помните, что после расточки следует подогнать шатуны по массе. Для этого выбирается самая легкая деталь.
Шатунные вкладыши дополнительно рекомендуется обработать антифрикционным покрытием MODENGY Для деталей ДВС.
Шатуны. Всё, что нужно знать о сердце трансмиссии. Объяснение размеров и стандартов шатунов
5/5 — (3 голоса)
Шатун — часто называемый кривошипным механизмом — является одной из самых важных частей велосипеда. Являясь одним из ключевых компонентов, который помогает перемещать цепь при кручении педалей, он лежит в основе трансмиссии и помогает сделать велосипед велосипедом.
В этом руководстве мы расскажем вам все, что нужно знать о шатунах, рассмотрим типы шатунов, размеры цепных колес, длину шатуна и совместимость шатунов, а также подробно рассмотрим шатуны для шоссейных, горных и гравийных велосипедов.
Короче говоря, мы откроем ящик Пандоры, которым является велосипедный шатун.
Казалось бы, все просто, но в этом узле вашего велосипеда скрыто огромное количество сложностей, которые позволяют вам поддерживать вращение колес.
Содержание
Что такое шатун?Кривошипы бывают разных форм, но имеют одно и то же назначение.
Во-первых, давайте начнем с основ.
Шатун — это, проще говоря, та часть велосипеда, на которую вы нажимаете педалями, чтобы двигать себя и велосипед вперед. В Северной Америке его обычно называют шатуном, а в Великобритании — цепным комплектом, хотя в обиходе все еще используется слово crankset или просто «шатун».
Шатун состоит из двух кривошипов, к которым крепятся педали, и от одной до трех звёзд, через которые проходит цепь.
Шатуны обычно состоят из звездочек…
Кривошипные рычаги…
…и шпиндель.
В современных конструкциях она также обычно включает в себя часть посередине — ось или шпиндель — которая соединяет две стороны.
В традиционных шатунах ось является частью каретки, подшипникового узла, который соединяет шатуны с рамой велосипеда.
В сочетании с задней передачей, которая обычно обеспечивается задним переключателем и кассетой с несколькими звездочками, ваш шатун должен обеспечивать достаточно широкий диапазон передач, чтобы вы могли выбрать одну из них, подходящую для местности, по которой вы едете.
Звучит просто, но шатун — это один из тех компонентов велосипеда, который скрывает свою сложность в многочисленных вариантах, стандартах и проблемах совместимости.
Размеры шатунов — 1x, двойной и тройнойКривошипы обычно поставляются с одним, двумя или тремя цепными звёздами.
Шатун 1x (произносится «один на один») имеет одну звезду, что устраняет необходимость в переднем переключателе.
Двойные шатуны с двумя звёздами — обычное явление для шоссейных велосипедов.
Тройной шатун с тремя звёздами.
Две цепные передачи наиболее распространены на шоссейных велосипедах, в то время как новейшие горные велосипеды обычно оснащаются одним кольцом.
Современные системы обеспечивают большой запас хода как при подъеме в гору, так и при более быстрой езде.
Системы с одним кольцом (известные как 1x, произносится как «one-by») становятся все более популярными на гравийных велосипедах, их можно встретить и на дорожных велосипедах.
В сочетании с кассетой, количество зубьев на кольцах шатуна определяет передаточное число вашего велосипеда. Однако размеры цепных звёзд существенно различаются, есть варианты для любого типа езды, поэтому ниже мы рассмотрим их отдельно.
Цепные кольца обычно крепятся болтами на кронштейнах, выступающих из правого шатуна, которые также называются «паук». Однако есть и исключения, о которых мы еще поговорим.
Вы не сможете легко поменять количество звёзд, на которое настроен ваш велосипед, так как передний переключатель и соответствующий переключатель скоростей будут специфическими для вашей системы, и их тоже придется заменить.
Измерители мощности, встроенные в шатуны, популярны среди шоссейных велосипедистов, ориентированных на производительность (а также среди некоторых горных и гравийных велосипедистов).
Также популярны измерители мощности на педалях.
Существует широкий выбор моделей измерителей мощности, но они стоят дорого, и вам могут понадобиться специальные инструменты, чтобы установить их вместо имеющегося шатуна вашего велосипеда.
Замена размеров звёздочекЗамена размеров звёздочек возможна, но необходимо учитывать совместимость.
Поменять размер звёзд на двойном или тройном шатуне не так просто, как кажется, потому что определенные цепные передачи разработаны для совместной работы, а расположение зубьев и рампы на кольцах помогают плавному переключению цепи.
Несоответствующая пара звёзд может привести к особенно неудобному переключению с малого кольца на большое, а также к повышенному риску схода цепи с колец, независимо от того, переключаетесь ли вы вверх или вниз.
Бренды группсетов также рекомендуют максимальную разницу в количестве зубьев цепных звёзд, с которыми может работать передний переключатель, и обычно нельзя увеличивать расстояние между кольцами.
Кроме того, размер зубьев на звездочке соответствует количеству передач на вашем велосипеде, поэтому вы не можете, например, использовать 8-скоростную звездочку с 11-скоростной цепью, потому что в этом случае зубья будут слишком широкими.
Если вы хотите поменять размеры звездочек, заранее проверьте совместимость.
В случае с однокольцевой системой все гораздо проще: нужно учитывать только длину цепи.
Длина шатуновШатуны выпускаются различной длины.
В продаже имеются шатуны различной длины.
Самый короткий обычно составляет 165 мм (измеряется от центра нижнего кронштейна до центра шпинделя педали) и увеличивается с шагом 2,5 мм до 175 мм, хотя есть исключения и с большей длиной.
Наиболее распространенная длина шатуна на шоссейных велосипедах среднего размера составляет 172,5 мм, в то время как на горных велосипедах чаще всего используются шатуны длиной 170 мм или 175 мм.
Более длинные шатуны дают больше рычагов. Их можно встретить и на некоторых велосипедах больших размеров.
Однако будьте осторожны, устанавливая на велосипед более длинные шатуны, чем те, с которыми он поставляется, так как это уменьшит дорожный просвет, если вы будете крутить педали в быстром повороте или преодолевать препятствия на бездорожье.
Шатуны 170 мм широко распространены на горных велосипедах. Длина шатуна — «170» — указана на задней части шатуна, изображенного на фотографии.
Более короткий шатун позволяет поддерживать более высокий каденс. Их часто предпочитают триатлонисты.
На практике речь идет всего о нескольких миллиметрах разницы между «длинными» и «короткими» шатунами — большинство велосипедистов едва заметят разницу при обычной езде, переходя от одного размера к другому.
Совместимость с шатунамиВы можете заменить звезды на шатуне, но не все звезды подходят ко всем шатунам.
Во-первых, у разных шатунов может быть разное количество рычагов или интерфейсов прямого монтажа (соединяющих шатуны с звёздами), и они могут быть расположены по-разному.
Многие дорожные шатуны Shimano имеют четыре рычага, но они неравномерно распределены по шпинделю.
В отличие от них, 11-скоростные шатуны SRAM для шоссейных велосипедов имеют пять рычагов, равномерно распределенных и с одним болтом крепления цепной звезды, ввинчивающимся в заднюю часть шатуна.
Шатуны Campagnolo для шоссейных велосипедов поставляются с четырьмя рычагами, равномерно распределенными, как и FSA.
Диаметр окружности болта (BCD)BCD (диаметр окружности болта) — это диаметр окружности, пересекающей центр болтов передней звезды.
На обычных шатунах цепные звезды крепятся болтами к шатунам на правом шатуне.
Болты образуют круг вокруг паука, а расстояние по окружности на средней линии болтов является «диаметром окружности болта» или BCD (в литературе Shimano это называется «диаметром окружности шага» или PCD).
Сменная передняя звезда должна иметь тот же BCD, что и шатун, а также такое же расположение болтов, чтобы они соединялись.
BCD любой данной системы шатунов также устанавливает нижний предел зубьев для совместимости со звездочками.
Например, если у вас шатун с BCD 130 мм, то самая маленькая совместимая звезда — 38t. Для шатунов с BCD 110 мм нижний предел опускается до 33t, и так далее.
В некоторых старых системах BCD различался между размерами цепных звёзд, поэтому дорожные шатуны Shimano 53/39t имели разный BCD (130 мм) и 50/34t (110 мм), что означало, что вы не могли поменять их местами без замены всего шатуна.
Это изменилось в новых дорожных шатунах Shimano, которые перешли на 110 мм BCD для всех размеров цепных звёзд, что дает вам возможность увеличить или уменьшить размер цепных звёзд без необходимости менять шатуны.
Однако шатуны SRAM имеют разный BCD в разных комплектациях. 12-скоростная система SRAM Force eTap AXS или SRAM Rival eTap AXS с двумя кольцами и с одним кольцом имеют BCD 107 мм, а двойное кольцо SRAM Force Wide имеет BCD 94 мм.
При переходе на 11 скоростей BCD для шатунов Force увеличивается до 110 мм или 130 мм, в зависимости от совместимости цепных звёзд.
Для шатуна SRAM S-650 Eagle MTB с непрямым креплением BCD снова другой — 104 мм. Это означает, что взаимозаменяемость звездочек SRAM ограничена.
В некоторых комплектациях расположение BCD еще сложнее. Внутренняя звезда иногда устанавливается на внутреннюю часть внешнего кольца или отдельно на шатун.
В этом случае для внутреннего кольца используется второй BCD, который отличается от BCD внешнего кольца. Примером может служить гравийная группа Shimano GRX, где BCD внешнего кольца составляет 110 мм, а внутреннего — 80 мм.
Шатуны с прямым креплениемКольцо SpiderRing от Cannondale с прямым креплением состоит из двух звезд, выкованных как единое целое.
Наконец, растет число шатунов «прямого монтажа», в которых внешняя звезда крепится непосредственно к шпинделю шатуна, что позволяет обойтись без болтов в рычагах и снизить вес.
Такая система распространена на однокольцевых шатунах для горных и гравийных велосипедов. Опять же, совместимость между системами разных брендов ограничена.
Некоторые шоссейные шатуны SRAM и Cannondale имеют системы прямого крепления с двумя цепными кольцами, выкованными как одно целое, поэтому вам придется менять весь комплект.
Стандарты кареткиСуществует множество различных стандартов каретки.
Следующая сложность — огромное количество стандартов каретки.
Это может касаться расстояния между подшипниками в корпусе нижнего кронштейна, способа их крепления в раме велосипеда и диаметра шпинделя шатуна.
Как правило, дорожный шатун не подходит к нижнему кронштейну MTB и наоборот, хотя это не является жестким и непреложным правилом.
Это еще сложнее, потому что существуют различные стандарты в группах горных и шоссейных велосипедов. Некоторые из них совместимы, большинство — нет, хотя вы можете приобрести адаптеры для некоторых комбинаций.
Если вы хотите поменять шатун, лучше всего установить стандарт, используемый в вашем велосипеде, и придерживаться его, либо обратиться за советом к профессионалу в веломастерской.
Ширина корпуса нижнего кронштейна является основным фактором, определяющим ширину выноса или «Q-фактор». Это расстояние между педалями и фактор эффективности педалирования.
Как правило, дорожные шатуны имеют более узкий Q-фактор, чем горные велосипеды, так как последние рассчитаны на больший зазор между шинами. Однако рост популярности гравийных велосипедов и тенденция к увеличению ширины шин на дорожных велосипедах мутят воду.
Типы шатунов — дорожные, MTB и гравийныеКонструкции шатунов различаются в зависимости от типа езды, для которого они предназначены. Вот обзор распространенных шатунов для шоссейных, горных и гравийных велосипедов.
Шатуны для шоссейных велосипедовБольшинство шоссейных велосипедов оснащаются двойным шатуном с двумя кольцами и до недавнего времени имели одну из трех типичных конфигураций.
«Стандартный» двойной шатунСистема 53/39t долгое время считались «стандартными» двойными, но это начинает меняться.
«Стандартный» двойной шатун имеет звёзды с 53 и 39 зубьями. Хотя он и называется стандартным, в наши дни он встречается не так часто и является уделом гонщиков, поскольку сейчас в моде меньшие цепные звёзды, дающие меньшее передаточное число.
Более того, переход на 12-скоростную передачу означает, что стандартный двойной шатун больше не является стандартным на последних велосипедах WorldTour с группами SRAM или Shimano.
Благодаря более широкому спектру передач, доступных для 12-скоростных кассет, Shimano теперь предлагает двойное шатунное устройство 54/40t для набора Dura-Ace R9200 вместо традиционного 53/39t.
SRAM пошла по другому пути и, в результате того, что теперь на ее 12-скоростных дорожных кассетах установлена самая маленькая звездочка с 10 зубьями (традиционно самой маленькой звездочкой кассеты была 11 зубьев), предлагает 50/37t в качестве самого большого размера двойного шатуна для набора Red eTap AXS.
Полукомпактный двойной шатунКомбинация звездочек 52/36t представляет собой нечто среднее между стандартным двойным и компактным шатунами.
Если оставить в стороне велосипеды профессионального уровня, то более спортивные дорожные велосипеды теперь обычно комплектуются шатунами 52/36t.
48/35t — это эквивалент шатунов SRAM с шатунами 52/36t.
Это так называемый «полукомпакт», который дает немного меньше верхних передач, чем 53/39, но открывает больше возможностей для преодоления холмов на низких оборотах. 48/35t — это 12-скоростной эквивалент полукомпакта от SRAM.
Компактный двойной шатунВы даже получите компактную систему Shimano Claris.
Наконец, есть компактный шатун. Он обычно встречается на дорожных велосипедах для выносливости, а также на универсальных велосипедах и велосипедах начального уровня и, как правило, имеет 50- и 34-зубые звездочки. 12-скоростной аналог SRAM имеет комбинацию 46/33t.
Компактный шатун обеспечивает достаточный запас низких передач, особенно в паре с современной кассетой, где самая большая звездочка имеет 30 или более зубьев, хотя самая высокая (самая тяжелая) передача будет ниже.
Трансмиссия 1x чаще встречается на горных и гравийных велосипедах, но некоторые дорожные велосипеды, такие как 3T Strada и Whyte Wessex One, оснащаются однокольцевыми группами.
Хотя некоторые туристические велосипеды имеют три кольца, тройные группы встречаются редко, учитывая, что современные двойные шатуны позволяют расширить диапазон передач.
Шатуны для гравийных велосипедов — 1x или 2x?Трансмиссия 1x популярна для езды по гравию.
Передачи для гравийных велосипедов существенно различаются в зависимости от намерений велосипедиста, при этом предлагается множество различных конфигураций шатунов, как 1х, так и 2х.
SRAM, Shimano и Campagnolo выпустили группы для гравийных велосипедов — SRAM XPLR, Shimano GRX и Campagnolo Ekar — со специфическими для гравийных велосипедов передаточными числами и вариантами 1х и 2х.
Многие гравийные велосипеды первого поколения оснащались компактным дорожным шатуном с звёздами 50/34t, и вы все еще можете найти некоторые гравийные или вседорожные велосипеды с такой конфигурацией.
Однако компактный шатун вряд ли обеспечит достаточно низкую передачу для езды по бездорожью. Учитывая это, сейчас гораздо чаще можно встретить суперкомпактные шатуны (также называемые субкомпактными) на гравийных велосипедах с двумя звёздами.
Обычно они имеют либо 46/32t, либо 46/30t, хотя Shimano GRX также предлагает 48/31t.
Это дает более низкое передаточное число, ниже 1:1 с подходящей кассетой, что позволит вам преодолевать тяжелое бездорожье или нагружать велосипед для велопоходов.
Шатуны 1x также являются популярным вариантом для гравийных велосипедов, поскольку отказ от переднего переключателя упрощает механическую настройку, а большие переходы между передачами являются меньшей проблемой при езде по гравию. Обычно предлагаются одинарные цепные звёзды 36t, 38t, 40t или 42t.
Campagnolo Ekar предлагает 13 скоростей, а самая маленькая звездочка на кассете имеет девять зубьев. Это только однокольцевой велосипед, с четырьмя вариантами шатунов от 38 до 44 зубьев.
Цепные кольца горных велосипедов имеют меньше зубьев, чем цепные кольца шоссейных велосипедов, чтобы обеспечить более низкую передачу на бездорожье.
Как и шоссейные и гравийные велосипеды, горные велосипеды имеют широкий спектр различных вариантов шатунов.
Почти каждый новый горный велосипед, за исключением самых начальных моделей, оснащен шатуном с одним кольцом, что позволяет использовать кассету с очень большим диапазоном для снижения сложности передней части трансмиссии.
Shimano предлагает четыре уровня трансмиссии 1×12, начиная с Deore, SLX, XT и заканчивая топовым набором XTR.
Но вам не обязательно иметь однокольцевую трансмиссию, и вы можете получить несколько вариантов трансмиссии 2x во всех диапазонах. Некоторые 11-скоростные наборы Shimano также все еще доступны.
SRAM также использует одинарные кольца во всех своих линейках горных велосипедов, от SX Eagle до флагманской беспроводной электронной трансмиссии XX1 Eagle AXS.
Бренд Eagle представляет собой широкую линейку 12-скоростных групп американской компании с одним кольцом. Шатун XX1 Eagle высшего класса доступен с звёздами с 30, 32, 34, 36 или 38 зубьями, в то время как более дешевые линейки обычно предлагают подмножество этих размеров, обычно 30, 32 или 34 зуба.
Варианты двух колец SRAM в модели GX-1000 включают 36/22t 11-скоростной шатун, с дополнительной опцией 38/24t цепных колес в 10-скоростном варианте. Бюджетная модель S-200 предлагает тройную систему 42/32/22t с 9-скоростной передачей.
Поскольку на разных горных велосипедах используются разные стандарты ширины оси, цепная линия также имеет большое значение. Поскольку в разных стандартах кассета находится на разном расстоянии от центральной оси велосипеда, то и цепная звезда должна быть на разном расстоянии от оси, чтобы обеспечить плавную работу всех передач.
Некоторые бренды предлагают различные варианты цепных колес для своих шатунов, чтобы приспособить их к разной ширине оси, и вам нужно выбрать подходящее для вашего велосипеда.
Многие велосипеды для циклокросса теперь имеют однокольцевые конструкции, но некоторые, как этот Ribble, все еще имеют шатуны 2x.
Одиночные цепные кольца получили широкое распространение на велосипедах для циклокросса по той же причине, по которой они популярны на гравии: в грязных условиях циклокроссовых гонок меньше шансов ошибиться, к тому же вы можете установить направляющую цепи, чтобы снизить риск падения цепи.
Классическая система для циклокросса — это двухкольцевая группа 46/36t, с меньшим расстоянием между цепями для более уверенного переключения. Вы все еще можете найти велосипеды для циклокросса с такими передаточными числами.
Гибриды и фиксыВам нужно найти правильное передаточное число для фикседа и синглспида, потому что это единственная передача, которая у вас есть.
Гибридные велосипеды с плоским рулем также поставляются с различными конфигурациями шатунов, среди которых распространены варианты 1x и 2x.
Наконец, односкоростные велосипеды, как и следовало ожидать, имеют одну звезду. Ключевым моментом здесь является подбор правильного сочетания размера цепной звезды и задней звездочки, чтобы обеспечить необходимое передаточное отношение для вашего стиля езды и местности.
Фиксики (фиксированные передачи) и трековые велосипеды имеют односкоростные трансмиссии без свободного хода — это означает, что если заднее колесо движется, то движутся и ваши ноги.
Альтернативные варианты шатуновКрис Фрум использовал передние звезды OSymetric на пути к победе в Тур де Франс 2015 года.
Помимо стандартных круглых цепных колец, вы можете приобрести эллиптические кольца. Несколько лет назад они были популярны среди профессионалов, их использовали, в частности, Брэдли Уиггинс и Крис Фрум, хотя сейчас они не так популярны.
Их цель — сделать педалирование более плавным, поскольку эффективное передаточное отношение меняется по мере вращения шатуна. Теория заключается в том, что так легче преодолевать мертвые зоны в верхней и нижней части хода педалей.
Если вы хотите попробовать эллиптические кольца, важно убедиться, что они совместимы с вашими шатунами.
Ременной привод Gates = никаких маслянистых следов на брюках.
Что касается других альтернатив, то не все велосипеды имеют стандартный зубчатый шатун.
Ременная передача иногда встречается на городских велосипедах. Он использует зубчатый ремень из углеродного волокна для привода заднего колеса и имеет преимущество в более низком уровне обслуживания и отсутствии смазки. Наиболее распространенная марка — Gates.
Покупка нового шатуна или деталейИз вышесказанного видно, что шатуны далеко не просты, и если вы хотите заменить свой шатун или его части, необходимо учесть множество различных моментов. В общем, мы рекомендуем придерживаться марки и модели шатуна, который уже установлен на вашем велосипеде, если вы хотите избежать проблем с совместимостью.
Если вы все же хотите что-то поменять, лучше обсудить свои возможности с веломехаником.
Для этого могут потребоваться специальные инструменты, поэтому, опять же, стоит доверить это профессионалам.
Cбор средств на развитие сайта и на хостинг. Дорогие друзья! Наш сайт — это некоммерческий проект, поддерживаемый только собственными силами. Тем не менее, содержание сайта требует определенных затрат. Спасибо откликнувшимся!
Возможно Вам это будет интересно:
Шатуны — обзор
ScienceDirectРегистрацияВход
Затем шатун передает усилие на кривошип, чтобы провернуть коленчатый вал.
Из: Machine Engineering Systems, 2001
PlusДобавить в Mendeley R.C. МакКьюн, Г.А. Weber, в Encyclopedia of Materials: Science and Technology, 2001
2.4 Шатуны
Шатун обеспечивает механическую связь между поршнем и коленчатым валом и должен обладать свойствами высокой прочности, низкой инерционной массы и однородности массы с другие шатуны, прикрепленные к коленчатому валу.
Соединение с коленчатым валом достигается за счет сплошных полувкладышей подшипников скольжения, вставленных с обеих сторон разъемного большого конца. Соединение с поршнем обычно осуществляется поршневым пальцем из закаленной стали, проходящим через корпус поршня. В последние годы отличные посадки шатуна на разъемной большой головке были достигнуты за счет контролируемого разрушения большой головки шатуна (Olaniran and Stickels 19).93). Большие концы шатуна часто имеют прямую резьбу, так что разъемная часть может быть прикреплена во время сборки с коленчатым валом. Материалы для шатунов включают стали порошковой металлургии, которым придают начальную форму, а затем куют почти до конечного размера, а также стали со средним содержанием углерода, которые приобретают превосходную прочность либо за счет отдельных процессов термообработки, либо за счет контролируемого охлаждения после этапа ковки. В гоночных двигателях для шатунов могут использоваться титановые сплавы, такие как Ti-6Al-4V, чтобы достичь высокого отношения прочности к массе детали.
Просмотр книги Глава покупки
Читать полная глава
URL: https://www.sciendirect.com/science/article/pii/b0080431526000863
. 1.3 Шатуны и эксцентрики Шатуны (рис. 4.33) передают усилие вращения шатунной шейки в колебательное усилие поршневого пальца. Шатуны разделены перпендикулярно их осевым линиям на конце шатунной шейки для установки шатуна на коленчатый вал. Крышка и стержень выровнены с помощью втулки с малым допуском или болтов, закрепленных на корпусе. Штоки могут быть просверлены нарезкой или могут иметь литые каналы для передачи масла от поршневого пальца к шатунному пальцу. Шатун с растягивающей нагрузкой изготавливают из кованой стали, литой стали или стали заводской. Стержни с нагрузкой на сжатие изготавливаются литыми из стали с шаровидным графитом или из алюминиевого сплава. Рис. 4.33. Принципиальная схема шатуна. Отношение расстояния между центральными линиями поршневого пальца и подшипников шатунной шейки к половине длины хода обозначается как « L / R ». Соотношение напрямую влияет на пульсации давления, объемный КПД, размер демпфера пульсаций, скорость отделения жидкости, ускорительный напор, момент сил инерции и размер рамы. Низкий“ L / R ” приводит к высоким пульсациям. Высокий « L / R » уменьшает пульсации, но может привести к большой и неэкономичной силовой раме. Обычный промышленный диапазон « L / R » составляет от 4:1 до 6:1. Эксцентриковый хомут (рис. 4.34) выполняет ту же функцию, что и шатун, за исключением того, что он обычно не разрезается. Эксцентриковая лента снабжена подшипниками качения (ролическими или шариковыми), а шатуны — подшипниками скольжения. Эксцентриковые хомуты применяются к буровым и шламовым насосам, которые запускаются с полной нагрузкой без использования байпасной линии. Рис. 4.34. Пример эксцентриковой планки. Просмотреть главуКнига покупок Прочитать главу полностью URL: https://www.sciencedirect.com/science/article/pii/B9780128098950000041 Kuang-Hua Chang, in Design Theory and Methods Using CAD 0/1CAE5 Соединительный стержень моделируется как задача о плоском напряжении с использованием 25 четырехугольных p-элементов. Форма шатуна должна быть определена так, чтобы свести к минимуму его вес с учетом ряда ограничений по напряжению. Геометрическая модель, сетка конечных элементов, физические размеры и расчетные переменные показаны на рисунке 3.33. Свойства материала модуль упругости E = 2,07 × 10 5 МПа и коэффициент Пуассона v = 0,298. РИСУНОК 3.33. Модель шатуна двигателя (Хванг и др. В этой задаче рассматриваются две нагрузки: огневая нагрузка T F , возникающая во время цикла сгорания, и инерционная нагрузка T I , возникающая во время цикла всасывания выхлопа Инсульт. Эти нагрузки определяются следующим образом (Хванг и др., 1997 г.): (3,98)TF={357,589θ2−0,0263131θ−175,390,в левом внутреннем круге,−40°≤θ≤40°518,622θ2−3258,60θ+4812,67,в правом внутреннем круге, 140°≤θ≤220° (3

3.10.2.1 Геометрические модели и модели конечных элементов
, 1997).
)TI {21,7327θ4–282.180θ3+1335.71θ2–2723,33θ+1998,7, AtleftinnerCircle, 105 ° ≤ ≤225 ° 49,6133θ41.22975θ3–76,8156θ2–0,823978θ12,4547, ат. θ — угол, измеренный против часовой стрелки от положительной оси x 1 .
Посмотреть главуКнига покупок
Читать главу полностью
URL: https://www.sciencedirect.com/science/article/pii/B9780123985125000037
Doug Woodyard, in Pounder’s Marine Diesel Engines and Gas Turbines (Ninth Edition), 2009
Connecting Rods
Центральный шатун имеет ладонный конец на нижнем конце, к которому болтами прикручены нижние концевые опоры подшипника, тогда как верхний конец стержня имеет цельную непрерывную нижнюю половину опоры, к которой болтами прикручены верхние опоры полуподшипника.
Боковой шатун образован ладонными концами на обоих концах стержня, к которому болтами прикручены верхний и нижний концевые подшипники. Подшипники верхнего конца центрального шатуна состоят из сплошных вкладышей с белой металлической футеровкой для нижних (нагруженных) половин, а две опоры подшипника над концами пальцев крейцкопфа образуют верхние половины.
Нижние концевые подшипники боковых шатунов покрыты белым металлом и снабжаются смазочным маслом от коренных подшипников через отверстия, проходящие вверх по шатунам к боковым верхним концевым подшипникам. Центральные шатуны также имеют нижние концевые подшипники из литой стали с футеровкой из белого металла, которые снабжаются маслом через отверстия в шатунах от верхних концевых подшипников. Боковые и центральные верхние концевые подшипники оснащены тонкостенными подшипниками с белой металлической футеровкой.
Штифты центральной траверсы изготовлены из азотированной стали и закалены таким способом. Вверху штифты прикручены болтами к ладонному концу поршневых штоков, а скобы крейцкопфа зажаты между ними; кроме того, две длинные шпильки горизонтально проходят через штифты крейцкопфа и крепят штифты к кронштейнам сзади (рис.
14.10). Телескопические трубы для смазочного и охлаждающего масла поддерживаются кронштейнами крейцкопфа в передней части штоков поршня, а направляющие башмаки крепятся болтами к этим кронштейнам сзади. Каждая боковая крейцкопф (рис. 14.11) опирается на стальную отливку, в которую впрессован штифт крейцкопфа, а боковой стержень ввинчен в верхнюю часть отливки.
Рисунок 14.10. Центральная траверса в сборе
Рисунок 14.11. Боковая траверса в сборе
Просмотреть главуКнига покупок
Прочитать главу полностью
URL: https://www.sciencedirect.com/science/article/pii/B978075068984700014X (Второе издание), 2010 г.
Рабочий процесс решения задачи проектирования 9
Идеализация
Шатун уже был получен в виде единой детали, поэтому дальнейшее упрощение не требуется. В этой задаче проектирования нагрузки будут передаваться из среды динамического моделирования.
- 1.
Open Завершен.
Output Grapher- 4.
Щелкните правой кнопкой мыши столбец Time data > Select Unselect all Curves
- 5.
Выберите Force for the Revolution: 3 и Point-Line:4 соединения
- 6.
Щелкните правой кнопкой мыши столбец Force (Revolution:3) > Select Search Max.
Максимальная сила для соединения Force (Revolution:3) составляет 7280 Н и возникает в момент времени 0,0153 секунды. Мы экспортируем эту силу в среду анализа напряжения. Значение может отличаться.
- 7.
Отметьте в столбце Export to FEA 0,0153 секунды, чтобы экспортировать нагрузки в этот период времени
Добавлен этот временной шаг.
- 8.
Щелкните правой кнопкой мыши столбец Force (Point-Line:4) > Select Search Max.
Максимальная сила для соединения Сила (Точка-Линия:4) составляет 3582 Н и возникает в момент времени 0,0071 секунды.
Поскольку эта сила возникает в разное время, мы также экспортируем эту силу в среду анализа напряжения.
- 9.
Отметьте в столбце Export to FEA 0,00710 секунды, чтобы экспортировать нагрузки в этот период времени
Этот временной шаг также добавлен.
- 10.
Close the Output Grapher
- 11.
Select Export to FEA
- 12.
Select the Connecting Rod > Click OK
- 13.
Выберите грань, как показано, для передачи реактивных нагрузок соединения 3 на эту грань
- 14.
Выберите соединение 4 в диалоговом окне> Выберите лицо на другой стороне соединительного стержня
- 15.
Кличок OK > SELECT Финал Динамический моделирование
- 99999501501501501501501501501501501501501501501501501501501501501501501501501501501501501501501501501501501501.
Выберите вкладку Окружающая среда > Анализ напряжения - 17.
Выберите Создать моделирование > Укажите «Анализ шатуна» для Имя > Выберите Анализ нагрузки движения > Нажмите OK
Будут созданы следующие нагрузки:
- 18.
SELECT View
. Это происходит быстрее, если сначала выбрать Автоматические контакты .0002 Выберите Фактический для Отображение смещения . Значение может немного отличаться
- 21.
Двойной щелчок Смещение . Значение может немного отличаться
Хотя мы провели анализ напряжений, нагрузки движения, передаваемые от верхней части шатуна, неверны, поскольку они вызывают момент и не действуют непосредственно через центр шатуна.
Итак, нам нужно изменить это, чтобы посмотреть, изменятся ли результаты.
- 22.
SELECT АНАЛИЗ ОБЛАСТИ СТАВЛЕНИЯ
- Строка:4 > Выберите Редактировать
- 25.
Для начала координат Компонента 1 > Повторно выберите точку на шатуне, как показано > Щелкните OK
- 26.
Play the simulation
- 27.
Select Finish Dynamic Simulation
- 28.
Select Environments tab > Stress Analysis
- 29.
Щелкните правой кнопкой мыши Нагрузки > Выберите Обновить
Сила теперь перемещается на одной линии с шатуном, а не смещается.
- 30.
Выберите Симулировать > Запустить симуляцию
- 31.

Выберите Фактический для 1 Отображение смещения0 90. Значение может незначительно отличаться
Несмотря на то, что результаты не изменились, вы должны знать о положении суставов и их потенциальном влиянии на результаты.
Далее нам нужно определить, сошлись ли результаты.
- 32.
Select Convergence Settings
- 33.
Specify 3 for Maximum number of h refinements > Click OK
- 34.
Select Simulate > Rerun the имитация
- 35.
Выбрать Диаграмма сходимости
На приведенном ниже графике показано, что максимальные результаты напряжения фон Мизеса сошлись. Значение может незначительно отличаться.
График сходимости показывает, что сходимость была достигнута на этапе автоматического P-уточнения.
- 36.
Закройте график сходимости > Дважды щелкните Коэффициент безопасности
Теперь повторите вышеописанные шаги для динамической нагрузки, переданной на временном шаге 0,0153 секунды, и посмотрите, изменится ли коэффициент безопасности.
Скопируйте симуляцию и измените временной шаг с 0,007 10 секунд на 0,0153 секунды. Это ускорит анализ.
- 37.
Закрыть файл
Просмотр Глава Черта
Полная глава
. , в Pounder’s Marine Diesel Engines and Gas Turbines (Ninth Edition), 2009 г.
Шатун
Шатун изготовлен из кованой стали. Он имеет Т-образное основание, на котором шатунный подшипник крепится с помощью гидравлически затянутых болтов и гаек с пенн-фиксацией. L9В двигателе 0GBE между основанием и шатунным подшипником расположены прокладки, так как этому типу двигателя требуется камера сжатия меньшего размера из-за более высокой степени сжатия.
Верхняя часть имеет квадратную форму, на которой подшипники крейцкопфа крепятся с помощью гидравлически затянутых шпилек и гаек с фиксацией Penn. Несущие части взаимно собраны болтами и гайками, стянутыми гидравлическими домкратами.
Смазка шатунного подшипника осуществляется через центральное отверстие в шатуне.
Подшипник коленчатого вала отлит из стали и состоит из двух частей, облицованных белым металлом. Зазор в подшипниках регулируется регулировочными шайбами. Подшипники крейцкопфа изготовлены из литой стали, состоят из двух частей и снабжены вкладышами подшипников.
Просмотреть главуКнига покупок
Прочитать всю главу
URL: https://www.sciencedirect.com/science/article/pii/B9780750689847000138
Хироси Ямагата
9.1 Функции
Типичные шатуны показаны на рис. 9.1 и 9.2. Шатун обычно сокращается до шатуна. Шатунный механизм коленчатого вала преобразует возвратно-поступательное движение во вращательное.
Шатун соединяет поршень с коленчатым валом для передачи давления сгорания на шатунную шейку. На обоих концах есть опорные части, сторона поршня называется малым концом, а сторона коленчатого вала — большим концом.
9.1. Монолитный шатун. Внизу слева показан игольчатый подшипник, удерживаемый в держателе.
9.2. Шатун в сборе для четырехтактного двигателя, разъемный шатун из науглероженной хромомолибденовой стали. В разобранном и собранном состоянии.
Шатун должен выдерживать очень большие усилия, когда поршень перемещается в отверстии цилиндра. Часть вала шатуна подвергается изгибу, а также растяжению и сжатию. Части подшипника воспринимают нагрузку от веса поршня и шатуна. Во избежание выхода из строя подшипников шатун следует делать как можно легче. Чтобы избежать коробления, стержневая часть обычно имеет форму двутавровой балки из-за высокого отношения жесткости к весу этой формы. Рисунок 9.3 показано поперечное сечение.
9.3. Форма сечения.
Хотя шатуны как для четырехтактных, так и для двухтактных двигателей имеют форму двутавровой балки, распределение толщины в этих двух двигателях немного отличается.
Шатун четырехтактного двигателя испытывает большую растягивающую нагрузку во время такта выпуска, а также сжимающую нагрузку во время такта сгорания. Сила инерции совершающей возвратно-поступательное движение массы создает растягивающую нагрузку, пропорциональную произведению веса узла поршня, возвратно-поступательной массы шатуна и квадрата скорости вращения. Это больше, чем сжимающая нагрузка выше определенной скорости вращения.
На рис. 9.4 показан усталостный излом вала двутавровой балки. Наблюдаются береговые следы, типичные для усталостного разрушения. Трещины, возникшие в двух углах в результате изгиба, вызванного сжатием в части чуть ниже малого конца. Хотя более легкие конструкции предпочтительнее, следует избегать концентрации напряжений, которые могут инициировать усталостное разрушение. Шатуны бывают двух видов: монолитные и сборные. Эти типы используются, как показано в таблице 9.1.
9.4. Усталостный перелом. Трещины возникли в двух углах и вызвали следы на пляже.
Таблица 9.1. Типы шатунов
| Типы двигателей | Двухтактные | Одноцилиндровые и V-образные цилиндры для четырехтактных двигателей (в основном для мотоциклов) | Многоцилиндровые 1 четырехтактные 1 |
|---|---|---|---|
| Монолитный тип с игольчатым роликоподшипником | x | x | – |
| Сборный тип с подшипником скольжения | – | – 4 x |
Просмотр книги Глава Черта
Читать полная глава
URL: https://www.sciendirect.com/science/article/pii/b9781855737426500099
QiAlfan xin, in Dies in Engine, in Dies in Engine, in Dies in Engine, in Dies. Подшипники с малым и большим днищем шатуна составляют подшипники в узле поршня. Сухара и др. (1997) измеряли трение в опоре бобышки поршневого пальца полуплавающего поршневого пальца с запрессовкой в автомобильном бензиновом двигателе. Они обнаружили, что сила трения подшипника поршневого пальца увеличивается с давлением в цилиндре во второй половине такта сжатия, такта расширения и первой половине такта выпуска. Очень интересная диаграмма Стрибека была опубликована Suhara et al. Небольшое уменьшение шероховатости поверхности может значительно уменьшить трение поршневого пальца, как указано Suhara et al. Просмотреть главуКнига покупок Прочитать главу полностью URL: https://www. Michael F. Ashby, Elicia M.A. 2018 Шатун (рис. 12) является компонентом с ограниченной прочностью. Если стержень рассчитан на определенную прочность, его масса масштабируется как ρ/σ y и стоимость материала, из которого он изготовлен, составляется как C m ρ/σ y где ρ плотность, σ y предел текучести и C m стоимость за кг материала, из которого он сделан. Какой стержень лучше выбрать, если константа обмена массой-стоимостью α равна 5 долл./кг? А что, если бы это было 500 долларов за кг? Мы будем рассматривать это как пример замещения, взяв чугун в качестве основного материала. В таблице 7 приведены данные для материалов-кандидатов: чугун, низколегированная сталь, четыре ММС и бериллий. Рис. 12. Шатун. Таблица 7. 10.6.3 Характеристики трения подшипников поршня в сборе
Они работают в суровых условиях при высоких динамических нагрузках и относительно низких скоростях вращения шейки (например, Zhang 9).0037 и др. , 2004). Их моменты трения важны для точности расчета динамики поршневого узла. Сила трения поршневого пальца напрямую влияет на наклон юбки поршня. Их моменты трения необходимо включить в баланс моментов уравнений динамики узла поршня. Моменты трения в их подшипниках можно рассчитать либо с помощью упрощенного подхода с использованием эквивалентного коэффициента трения на границе, умноженного на действующую нагрузку и радиус подшипника, либо с помощью более сложного подхода, включающего уравнения трения гидродинамической смазки, введенные в предыдущем разделе.
Они заметили всплеск силы трения, возникающий при полной нагрузке сразу после ВМТ, где давление в цилиндре было самым высоким. Другой гораздо меньший всплеск произошел в 9Угол поворота коленчатого вала 0° после ВМТ зажигания, когда шатун изменил направление. Всплески силы трения указывали на характеристики граничной смазки поршневого пальца в этих областях. Сухара и др. (1997) обнаружил, что трение поршневого пальца находится в диапазоне от 6,5% (при половинной нагрузке) до 16% (при полной нагрузке) от среднего эффективного давления трения (FMEP) юбки поршня и колец, и этим нельзя пренебречь. Их результаты очень похожи на результаты аналитического моделирования, когда в моделировании предполагается граничное трение для поршневого пальца (Xin, 19).99). Поршневой палец и малый конец шатуна лишь слегка качаются вперед и назад. Силу трения поршневого пальца можно рассчитать, умножив нагрузку на палец на эквивалентный коэффициент трения.
(1997) для подшипника поршневого пальца. Они заметили, что коэффициент трения уменьшается по мере уменьшения рабочего параметра во второй половине такта сжатия, что указывает на работу гидродинамической смазки. Коэффициент трения резко возрастает по мере дальнейшего уменьшения рабочего параметра в первой половине такта расширения, что указывает на то, что подшипник поршневого пальца работает в режиме смешанного смазывания. Сухара и др. (1997) считал, что повышение коэффициента трения с увеличением рабочего параметра во второй половине такта расширения вызвано очень тонкой масляной пленкой, которая не утолщается с увеличением рабочего параметра. Это свидетельствовало о недостаточном снабжении смазочных масел в этом регионе. Они указали, что усовершенствование конструкции для уменьшения трения должно быть уделено как режиму граничной смазки в первой половине такта расширения, так и режиму масляного голодания во второй половине такта расширения.
(1997) в их обширном экспериментальном исследовании различных влияний конструкции на трение поршневого пальца. Улучшение материала подшипника бобышки пальца также оказывает большое влияние на снижение трения. Уменьшение зазора подшипника бобышки поршневого пальца, например, для снижения шума, может привести к увеличению трения в режиме граничной смазки из-за более серьезных шероховатых контактов, особенно при полной нагрузке и высоком давлении в цилиндре. Чрезмерное уменьшение длины поршневого пальца и толщины стенки с целью снижения веса может привести к значительному увеличению нагрузки на узел и деформации подшипника бобышки пальца. Это может привести к увеличению граничного трения и износа, если не будут приняты другие конструктивные меры для уравновешивания (например, использование лучшего материала подшипника, уменьшение шероховатости поверхности, улучшение подачи масла).
sciencedirect.com/science/article/pii/B9781845697150500108 4.23.6.3 Выбор материала для шатуна
Материалы для кандидата для соединительной стержни Материал Подписк I Плотность, ρ (кг/м 3 ) , сила, ρ (кг/м 3 ) 0005
05
05
5
5
005900есто Cost, C m ($/kg) Z i /Z 0 (α=5$/kg) Z i /Z 0 (α=500$/kg) Cast iron, malleable 0 7200 395 0.41 1 1 L.A. steel, AISI 4320 1 7850 487 0.95 1.2 1.2 Al(6061)-25%SiC(p) 2 2880 395 67 6.
25 0.54 AL (6061) -55%SIC (P) 3 2960 487 5.21 0,45 0,45 9999998. 4310 657 114 9.5 0.53 Ti-20%TiC(p) (PM) 5 4550 990 123 7.2 0.38 Бериллий марки И-250 6 1850 525 745 32 0,58
Define A Seange Z для I Th i+αρiσy,i=ρiσy,i(Cm,i+α)
В последних двух столбцах таблицы 7 приведены значения Z i для шатуна, для двух значений α нормализовать на чугунный шатун Z 0 . Красным обведена ячейка с наименьшим значением штрафной функции: чугун при α 5 долл./кг, MMC Ti 20%TiC(p) при α 500 долл./кг.
Те же результаты представлены на рис.
13. При низком значении константы обмена (α = 5 долл./кг, типично для семейного автомобиля) лучшим выбором является чугун; штрафная функция Z для MMC в 5-10 раз больше, чем для чугуна, а для бериллия — в 32 раза больше. Но когда константа обмена установлена выше (α = 500 долл. США/кг, значение, встречающееся в некоторых аэрокосмических приложениях), MMC Ti-20% TiC имеет самое низкое значение Z .
Рис. 13. Штрафная функция Z для двух значений обменной константы α, нормированных на наименьшее.
Просмотреть главуКнига покупок
Прочитать главу полностью
URL: https://www.sciencedirect.com/science/article/pii/B978012803581809980X
M.F. ЭШБИ, Э.М.А. MAINE, в сборнике Comprehensive Composite Materials, 2000
3.29.5.2 Выбор материала для шатуна
Шатун представляет собой компонент с ограниченной прочностью. Если стержень рассчитан на определенную прочность, его масса масштабируется как ρ/σ y , где ρ — плотность, а σ y — предел текучести или предел упругости материала, из которого он изготовлен.
В таблице указана масса м шести альтернативных стержней, приведенная к массе чугуна, м *. Учитывая стоимостную модель, можно оценить стоимость каждого из стержней. В таблице 5 приведены приблизительные затраты C , снова приведенные к стоимости чугуна C *. Чугунный стержень самый тяжелый, но и самый дешевый. Бериллиевый стержень самый легкий, но и самый дорогой. Какой стержень является лучшим выбором, если константа обмена массы α равна −£1 кг −1 ? А что, если бы это было −100 кг −1 ? Мы будем рассматривать это как пример замены, взяв чугун и действующий материал.
Таблица 5. Свойства и значения для альтернативных материалов шатуна.
| Material | ρ (kg m −3) | σ y (MPa) | m / m * | C / C * | Δ В / м *, α=−£1/kg | ΔV/m*, α=−£100/kg |
|---|---|---|---|---|---|---|
| Cast iron, nodular | 7300 | 240 | 1 | 1 | 0 | 0 |
| Forged low-alloy steel | 7850 | 900 | 0. 29 | 2.2 | −0.4 | 70 |
| Cast Al S360 | 2680 | 150 | 0.59 | 2.1 | −0,7 | 40 |
| Al-6061–15% SiC, PM | 2770 | 450 | 0.20 | 3.5 | −1.6 | 77 |
| Ti-6-4 B265 grade 5 | 4430 | 1020 | 0.14 | 22 | −20.1 | 65 |
| Beryllium grade 1–250 | 1840 | 480 | 0.13 | 390 | −398 | −302 |
Define the значение В каждого стержня на
(21)V=αm−C=α(мм*)m*−(CC*)C*
Изменение, связанное с заменой, равно
(22)ΔV=αΔm− ΔC, где Δm=(m−m*)=(mm*−1)m*дает ΔVm*=α(mm*−1)−(CCo−1)C*m*
, где C */ m * is стоимость за кг чугунного стержня, которую мы принимаем равной 1 фунту стерлингов −1 (0,75 фунта стерлингов −1 ).
В последних двух столбцах указаны значения V / m *. При α=-£1/кг чугунный стержень имеет наибольшее (т. е. наименее отрицательное) значение; когда вместо этого α=−100 фунтов стерлингов кг −1 , стержень MMC имеет самое высокое значение, за ним следует стержень из кованой стали. Требуется, чтобы константа обмена была больше, чем α=-£275 кг -1 , чтобы придать титановому стержню более высокую ценность, чем другие.
Просмотреть главуКнига покупок
Прочитать главу полностью
URL: https://www.sciencedirect.com/science/article/pii/B008042993
22Шатун: определение, функции, типы, детали, проблема
9 A стержень , который также называется 9Шатун 0179 является одной из основных частей двигателя внутреннего сгорания. Хотя он также используется в паровом двигателе, но очень важен для транспортных средств. Шатун соединяет поршень с коленчатым валом, что способствует преобразованию возвратно-поступательного движения поршня во вращение коленчатого вала.
Деталь функционирует как плечо рычага и должна передавать сжимающие и растягивающие усилия от поршня и вращаться на обоих концах.
Сегодня мы рассмотрим определение, функции, материал, детали, работу и схему шатунов.
Contents
- 1 Connecting Rod Definition
- 2 Conrod Materials
- 2.1 Design Nomenclature
- 3 Connecting Rod Parts
- 4 Functions of Conrod
- 5 Types of Connecting Rod
- 5.1 Billet conrods:
- 5.2 Литой стержень:
- 5.3 Кованый стержень:
- 5.4 Подпишитесь на нашу рассылку новостей
- 5.5 Металлический порошок:
- 6 Проблемы с шатуном
- 6.1 Усталость:
- 6.2 Гидрозамок:
- 6.3 Превышение оборотов:
- 6.4 Неисправность штифта:
- 6.5 Пожалуйста, поделитесь!
Шатун или шатун преобразует линейное движение вверх и вниз или возвратно-поступательное движение поршня в круговое движение коленчатого вала.
В процессе он испытывает растяжение, сжатие, изгиб и коробление.
Читать Все, что вам нужно знать об автомобильном поршне
Материалы шатунаШатуны обычно изготавливаются из литого алюминиевого сплава, который помогает выдерживать напряжения, возникающие в процессе.
В серийном производстве шатун обычно изготавливают из стали. Для высокопроизводительных приложений используются заготовки, которые вытачиваются из цельной заготовки, а не отливаются или куются.
Однако чугун можно использовать для более дешевых изделий с низкой производительностью, таких как мотороллеры.
Конструкция Номенклатура- A = площадь поперечного сечения шатуна.
- L = длина шатуна.
- C = предел текучести при сжатии.
- Wcr = разрушающая или изгибающая нагрузка.
- Ixx = момент инерции сечения относительно оси x
- Iyy = момент инерции сечения относительно оси y соответственно.

- Kxx = радиус вращения сечения вокруг оси x
- Kyy = радиус вращения сечения вокруг оси y соответственно.
- D = диаметр поршня r = радиус кривошипа
Детали шатуна в двигателе внутреннего сгорания состоят из большой головки , шатуна и малой головки .
Поршни соединены с малым концом шатуна с помощью поршневого пальца или поршневого пальца, который может поворачиваться в поршне. Этот штифт обеспечивает точку поворота между поршнем и шатуном. Поршневой палец удерживается на месте с помощью пружинного зажима или фиксатора поршневого пальца.
Большая головка шатуна крепится к шатунной шейке с помощью подшипника скольжения, что снижает трение. Но в некоторых двигателях меньшего размера используются подшипники, чтобы избежать необходимости смазки насоса.
Как правило, в подшипнике на большом конце шатуна имеется отверстие. Это позволяет смазочному маслу перекачиваться на упорную сторону стенки цилиндра для смазки хода поршней и поршневых колец.
Наконец, на деталях шатуна шатун может вращаться с обоих концов, так что угол между шатуном и поршнем может изменяться, когда шатун совершает возвратно-поступательное движение вокруг коленчатого вала.
Прочтите: Знакомство с бензиновым двигателем
Функции шатуна- Основная функция шатуна заключается в создании связи между поршнем и коленчатым валом для передачи мощности.
- Шатун помогает доставлять смазочное масло к стенкам цилиндра и поршневому или поршневому пальцу.
Типы шатунов зависят от материала, из которого они изготовлены. Ниже представлены различные доступные типы шатунов:
Заготовки шатунов:Заготовки шатунов изготавливаются из цельного куска стали или алюминия. Он легче, прочнее и долговечнее, чем другие виды шатунов. Шатуны заготовочного типа обычно используются для автомобилей высокого класса.
Продукт иногда предназначен для уменьшения концентраторов напряжения и облегчения вхождения в натуральную зернистость материала заготовки.
Производители предпочитают литой шток, поскольку он способен выдерживать нагрузку стандартного двигателя. Стоимость производства ниже, но его нельзя использовать в приложениях с высокой мощностью от 450 до 6000 об/мин.
Литые шатуны имеют заметный шов посередине, что отличает их от кованых.
Кованый стержень:шатуны, изготовленные из ковки, изготавливаются путем прессования зерна выбранного материала по форме стержня. Материал может быть стальным сплавом или алюминием в зависимости от требуемых свойств.
Ну производители кованых стержней используют разные виды стальных сплавов, хромовые и никелевые сплавы. Конечный продукт не должен быть хрупким. Никель или хромовый сплав повышают прочность шатуна.
Подпишитесь на нашу рассылку новостей
Металлический порошок: Шатун из порошкового металла также является подходящим выбором для производителей.
Он производится из порошкообразной смеси металлов, которая прессуется в форму и нагревается при высоких температурах. Он плавит смесь в твердую форму.
Может потребоваться легкая механическая обработка, но продукт выходит из формы в основном готовым продуктом. Шатуны из порошкового металла дешевле в производстве, чем сталь, и прочнее литых шатунов.
Читайте: Классификация двигателей внутреннего сгорания
Проблемы с шатуномШатун может испытывать проблемы во время работы. Это связано с тем, что он испытывает различные напряжения в камере сгорания. Некоторые из этих проблем могут быть устранены, в то время как некоторые требуют полной замены шатуна. В процессе эксплуатации шатун растягивается и сжимается, что может привести к поломке шатуна. Сломанный шток может полностью повредить двигатель. Ниже показана неисправность, возникающая на шатуне:
Усталость: Это основная причина поломки шатуна. Это часто происходит в старых двигателях.
Сжатие и растяжение стержня в процессе происходит тысячи раз в минуту. Это в конечном итоге приводит к износу детали, пока она не сломается. Недостаток масла и наличие грязи в двигателе могут ускорить эту проблему.
Новые двигатели также могут испытывать усталость в соединении, если двигатель перестроен. Ну так бывает, когда используются дешевые запчасти или не те.
Гидроблокировка:Гидроблокировка возникает, когда вода проникает в камеру поршня, что приводит к деформации шатуна. Обычно это происходит, когда автомобиль едет по затопленной улице.
Небольшое количество воды в цилиндре может вызвать стук или постукивание, которые можно легко устранить. Однако, если в цилиндре много воды, все пространство для искрового разряда занято, что может привести к изгибу или поломке штока цилиндра.
Превышение оборотов: Превышение оборотов — это неисправность, возникающая в новых и высокопроизводительных двигателях.
Если тахометр показывает красный цвет, это указывает на то, что состояние шатуна находится в опасности. Это связано с тем, что силы, действующие на шатун, резко возрастают при высоких оборотах.
Поршневой палец, соединяющий шатун с поршнем, изнашивается и становится причиной выхода из строя. В некоторых двигателях это приводит к катастрофическому отказу двигателя. Это когда шатун заходит в блок двигателя или когда коленчатый вал погнут.
Читать: Типы автомобильных двигателей
В некоторых двигателях вызывает потерю мощности. Если такое произойдет, то это если двигатель остановился сразу после поломки штифта. Есть вероятность, что двигатель спасут, иначе может произойти полная поломка.
Вот и все для этой статьи «шатун». Я надеюсь, вам понравилось чтение, если вы так любезны прокомментируйте, поделитесь и порекомендуйте этот сайт другим техническим студентам. Спасибо!
Что такое шатун? Детали, функции и типы
от Jignesh Sabhadiya
Что такое шатун?Шатун — это часть поршневого двигателя, которая соединяет поршень с коленчатым валом. Шатун вместе с кривошипом преобразует возвратно-поступательное движение поршня во вращение коленчатого вала.
Шатун необходим для передачи сжимающих и растягивающих усилий от поршня. В наиболее распространенной форме в двигателе внутреннего сгорания он позволяет поворачиваться на конце поршня и вращаться на конце вала.
Предшественником шатуна является механическое соединение, используемое водяными мельницами для преобразования вращательного движения водяного колеса в возвратно-поступательное движение. Шатуны чаще всего используются в двигателях внутреннего сгорания или паровых двигателях.
Детали шатунаНиже приведены детали шатуна:
- Малая головка: Конец, которым шатун крепится к поверхности поршневого пальца, называется шатун.

- Шатун: Конец, которым шатун прикрепляется к шатунной шейке, называется большим концом шатуна.
- Подшипник втулки: Оба конца шатуна закреплены подшипником втулки. К маленькому концу шатуна прикреплена втулка из фосфористой бронзы со сплошной проушиной. Большой конец прикреплен к шатунной шейке. Конец разделен на две части и опирается на вкладыш коренного подшипника.
- Вкладыш подшипника: В большом конце шатуна есть вкладыш подшипника, который соединен с крышкой подшипника, он известен как вкладыш подшипника. Они состоят из двух частей, которые соединяются вместе на коленчатом валу. Это положение, при котором шатун перемещается в обратном направлении.
- Болт и гайка: После установки кривошипа в нижней части шатуна обе стороны больших головок крепятся несколькими болтами и гайками. Таким образом, объединив все эти компоненты, шатун готов к использованию.
- Хвостовик: Кроме того, каждый болт и гайка используются для соединения шатуна и крышки подшипника.
И применяется секционная балка, известная как хвостовик. Сечение стержня может быть прямоугольным, трубчатым и круглым. - Наручный палец: Поршень двигателя соединен с шатуном с помощью полой трубы из закаленной стали, называемой наручным пальцем. Он также известен как поршневой штифт. Пальцевый палец проходит через короткий конец шатуна и поворачивается на зацепленном поршне.
- Поршень: Поршень соединяется с коленчатым валом с помощью шатуна, который обычно укорачивается до шатуна или шатуна. Назначение поршня – работать как подвижная пробка в цилиндре, образующая дно камеры сгорания.
- Крышка подшипника: Вкладные подшипники имеют регулировку износа, но она контролирует ход, а боковой зазор позволяет правильно затянуть крышку подшипника.
Шатун преобразует линейное движение поршня вверх и вниз в круговое движение коленчатого вала и поэтому подвергается растяжению, сжатию, изгибу и короблению.
Шатун создает связь между поршнем и коленчатым валом и, таким образом, передает мощность. Он преобразует линейное движение поршня вверх и вниз в круговое движение коленчатого вала и, следовательно, подвергается растяжению, сжатию, изгибу и короблению.
Шатун установлен на шатунной шейке коленчатого вала с подшипником скольжения. Крышка шатунного подшипника прикручена болтами к большой головке. В большинстве случаев шатун является полым или имеет внутренний литой масляный канал для подачи смазки на поршневой палец.
МатериалыДля получения минимального веса и высокой прочности шатуны изготавливаются из следующих материалов: двигателей)
Серийно выпускаемые шатуны кованые, литые или спеченные. Кованые шатуны имеют лучшее отношение прочности к весу и более низкую стоимость, чем спеченные шатуны. Однако производство штампов сравнительно дорого.
Типы шатуновНиже приведены типы шатунов, используемых в различных типах двигателей: шатуны
Шатуны плоские Шатуны плоских шатунов используются в рядных и оппозитных двигателях. Большой конец шатуна прикреплен к шатунной шейке и снабжен крышкой подшипника.
Крышка подшипника крепится болтом или шпилькой на конце шатуна. Шатун следует заменять в том же цилиндре и в том же относительном положении, чтобы обеспечить правильную посадку и балансировку.
2. Шатуны вилки и ножаЭти типы шатунов используются в мотоциклетных двигателях V-twin и авиационных двигателях V12. В каждой паре цилиндров двигателя «вилочный» шток разделен на две части на большом конце, а «лопаточный» шток сужается от противоположного цилиндра, чтобы соответствовать этому зазору в вилке.
Эта система устраняет качающуюся пару, возникающую при балансировке пар цилиндров вместе с коленчатым валом.
В конструкции с шатунными подшипниками шток вилки имеет одну широкую опорную втулку, которая проходит по всей ширине штока, включая центральный зазор.
В этом случае стержень лопасти проходит непосредственно снаружи этой втулки, а не на шатунной шейке. Это заставляет два стержня двигаться вперед и назад, что снижает усилие на подшипник и поверхностную скорость. Но скорость подшипника также является возвратно-поступательной, а не непрерывно вращающейся, что является серьезной проблемой для смазки.
3. Ведущие и ведомые шатуныВ радиальных двигателях обычно используются ведущие и ведомые шатуны. В этой системе один поршень состоит из главного штока, непосредственно прикрепленного к коленчатому валу. Другие поршни соединяют свои шатуны с кольцами, окружающими край главного штока.
Недостатком штоков ведущий-ведомый является то, что ход ведомого поршня немного больше, чем у ведущего поршня, что увеличивает вибрацию в V-образном двигателе.
4. Стержни заготовки Шатуны заготовки изготавливаются из стали или алюминия. По сравнению с другими типами шатунов они легче, прочнее и долговечнее.
Обычно используется в высокоскоростных транспортных средствах. Иногда он предназначен для уменьшения концентраторов напряжения и облегчения естественного зерна материала заготовки.
5. Литые шатуныЭти типы шатунов предпочтительны и разработаны производителями, поскольку они могут выдерживать нагрузку стандартного двигателя.
Производство литых стержней требует низких затрат, и их нельзя использовать в приложениях с высокой мощностью. Литые стержни имеют заметный шов посередине, который отличает их от кованых.
6. Кованые шатуныНекоторые шатуны изготавливаются методом ковки. Эти типы шатунов изготавливаются путем придавливания зерна материала к форме конца. В зависимости от требуемых свойств материал может быть стальным сплавом или алюминиевым.
Обычно используемые стальные сплавы представляют собой сплавы хрома и никеля. Конечный продукт не должен быть хрупким. Следовательно, никелевые или хромовые сплавы повышают прочность шатуна.
Шатуны также изготавливаются из силового металла, поскольку это подходящий выбор для производителей. Его готовят из смеси металлических порошков, которую прессуют в форму и нагревают до высокой температуры. Эта смесь превращается в твердую форму.
Может потребоваться легкая механическая обработка, но продукт в основном выходит из готовой формы. Шатуны из порошкового металла дешевле стали и прочнее литых.
Выход из строя шатунаПри каждом вращении коленчатого вала на шатун часто воздействуют большие повторяющиеся силы: силы сдвига из-за угла между поршнем и шатунной шейкой, силы сжатия при движении поршня вниз, и растягивающие силы при движении поршня вверх. Эти силы пропорциональны квадрату скорости вращения двигателя (об/мин).
Выход из строя шатуна, часто называемый «выбрасыванием шатуна», является одной из наиболее распространенных причин катастрофического отказа двигателя в автомобилях, когда сломанный шатун часто пробивает стенку картера, что делает двигатель неремонтопригодным.
Распространенными причинами выхода из строя шатуна являются разрушение при растяжении при высоких оборотах двигателя, сила удара, когда поршень ударяет по клапану (из-за проблемы с клапанным механизмом), выход из строя шатунного подшипника, обычно из-за проблем со смазкой, или неправильная установка шатуна .
Категории Авто Теги Автозапчасти, Автомобильные запчастиЗапчасти, Типы, Функции, Применение [PDF]
Из этой статьи вы узнаете, что такое шатун ? Как это работает ? это детали , функция , приложения , а типы шатунов . Объясняется диаграммой , а также загрузите PDF-файл этой статьи в конце.
Шатун и типы
Что такое шатун?
Шатун представляет собой соединение между поршнем и коленчатым валом. Он соединяет поршневой палец с шатунной шейкой. Меньший конец шатуна соединен с поршневым пальцем и большой конец шатунной шейки.
Шатун предназначен для преобразования линейного движения поршня во вращательное движение коленчатого вала.
Шатун состоит из двутаврового сечения и изготовлен из кованой стали. Алюминиевый сплав также используется для шатунов. Они точно подобраны в комплекты одинакового веса, чтобы сохранить баланс двигателя.
Чем легче шатун и поршень, тем выше результирующая мощность и меньше вибрация, поскольку возвратно-поступательный вес меньше.
Шатун передает усилие от поршня к шатунной шейке, поэтому он должен быть очень прочным, жестким, а также максимально легким.
Parts of Connecting Rod
Following are the parts of connecting rod:
- Small End
- Big End
- Bushing
- Bearing inserts
- Bolt and Nut
- Shank
- Wrist pin
- Piston
- Bearing колпачок
1. Малый наконечник
Конец, которым шатун крепится к поверхности поршневого пальца, называется малым концом шатуна.
2. Шатун
Конец, которым шатун прикрепляется к боковой шейке шатуна, известен как шатун.
3. Подшипник втулки
Оба конца шатуна закреплены подшипником втулки. К маленькому концу шатуна прикреплена втулка из фосфористой бронзы со сплошной проушиной.
Шатун прикреплен к шатунной шейке. Конец разделен на две части и опирается на вкладыш коренного подшипника.
4. Вкладыш подшипника
В большом конце шатуна находится вкладыш подшипника, который соединен с крышкой подшипника, он известен как вкладыш подшипника. Они состоят из двух частей, которые соединяются вместе на коленчатом валу. Это положение, при котором шатун перемещается в обратном направлении.
5. Болт и гайка
После установки кривошипа в нижней части шатуна обе стороны больших головок крепятся несколькими болтами и гайками. Таким образом, объединив все эти компоненты, шатун готов к использованию.
6. Хвостовик
Кроме того, каждый болт и гайка используются для соединения шатуна и крышки подшипника.
И применяется секционная балка, известная как хвостовик. Сечение стержня может быть прямоугольным, трубчатым и круглым.
Длина соединительного стержня лежит на соотношении (i/r)
, где,
i = — длина хвостовика или луча
r = — радиус хвостовика.
7. Наручный палец
Поршень двигателя соединен с шатуном с помощью полой трубы из закаленной стали, называемой наручным пальцем. Он также известен как поршневой штифт. Пальцевый палец проходит через короткий конец шатуна и поворачивается на зацепленном поршне.
8. Поршень
Поршень соединяется с коленчатым валом при помощи шатуна, который обычно укорачивается до шатуна или шатуна. Назначение поршня – работать как подвижная пробка в цилиндре, образующая дно камеры сгорания.
9. Крышка подшипника
Вкладные подшипники имеют регулировку износа, но она контролирует ход, а боковой зазор позволяет правильно затянуть крышку подшипника.
Конструкция и функции шатуна
Существует два типа подшипников с малым и большим концами.
Шатун разделен под прямым углом к своей длине, как в (а), или под углом, как в (б), для того, чтобы его можно было установить на шатунную шейку. Крышка крепится к корпусу шатуна двумя болтами и гайками.
В современных двигателях металлический подшипник не приваривается к отверстию шатуна, а используются отдельные вкладыши подшипников из низкоуглеродистой стали.
Втулочный подшипник имеет регулировку износа, но позволяет контролировать ход и боковой зазор, обеспечивая правильную посадку крышки подшипника. Иногда при использовании цилиндрических подшипников используются тонкие куски металла, известные как голени.
Их можно наполнить тоньше, чтобы компенсировать износ подшипника, а также обеспечить правильный зазор подшипника между шатуном и коленчатым валом. Маленький конец обычно представляет собой сплошную проушину, снабженную втулкой из фосфористой бронзы и винтом, закрывающим проушину вокруг штифта.
Все шатуны в двигателе должны иметь одинаковый вес, иначе может возникнуть заметная вибрация.
При сборке шатуны и крышки индивидуально подгоняются друг к другу. Обычно на нем указаны идентификационные номера, чтобы их нельзя было перепутать, если двигатель разбирается для обслуживания.
Типы шатунов
Ниже приведены типы шатунов, используемых в различных типах двигателей:
- Плоский шатун
- Вилочный и ножевой стержень
- Главный и подчиненный шатуны
- Шатуны из заготовок
- Литые шатуны
- Кованые шатуны
- Металлические шатуны с приводом
Большой конец шатуна прикреплен к шатунной шейке и снабжен крышкой подшипника.
Крышка подшипника крепится болтом или шпилькой на конце шатуна. Шатун следует заменять в том же цилиндре и в том же относительном положении, чтобы обеспечить правильную посадку и балансировку.
2. Вилка и шатуны
Эти типы шатунов используются в мотоциклетных двигателях V-twin и авиационных двигателях V12. В каждой паре цилиндров двигателя «вилочный» шток разделен на две части на большом конце, а «лопаточный» шток сужается от противоположного цилиндра, чтобы соответствовать этому зазору в вилке.
Эта система устраняет качающуюся пару, возникающую при балансировке пар цилиндров вместе с коленчатым валом.
В конструкции с шатунными подшипниками шток вилки имеет одну широкую опорную втулку, которая проходит по всей ширине штока, включая центральный зазор.
В этом случае стержень лопасти проходит непосредственно снаружи этой втулки, а не на шатунной шейке. Это заставляет два стержня двигаться вперед и назад, что снижает усилие на подшипник и поверхностную скорость. Но скорость подшипника также является возвратно-поступательной, а не непрерывно вращающейся, что является серьезной проблемой для смазки.
3. Главный и ведомый стержни
В радиальных двигателях обычно используются главные и ведомые шатуны. В этой системе один поршень состоит из главного штока, непосредственно прикрепленного к коленчатому валу. Другие поршни соединяют свои шатуны с кольцами, окружающими край главного штока.
Недостатком штоков master-slave является то, что ход ведомого поршня немного больше, чем у ведущего поршня, что увеличивает вибрацию в V-образном двигателе.
4. Шатуны заготовки
Шатуны заготовки изготавливаются из стали или алюминия. По сравнению с другими типами шатунов они легче, прочнее и долговечнее.
Обычно используется в высокоскоростных транспортных средствах. Иногда он предназначен для уменьшения концентраторов напряжения и облегчения естественного зерна материала заготовки.
5. Литые шатуны
Эти типы шатунов предпочтительны и разработаны производителями, поскольку они могут выдерживать нагрузку стандартного двигателя.
Литые стержни требуют низких затрат на производство и не могут использоваться в приложениях с высокой мощностью. Литые стержни имеют заметный шов посередине, который отличает их от кованых.
6. Кованые шатуны
Некоторые шатуны изготавливаются методом ковки. Эти типы шатунов изготавливаются путем придания форме конца зернистости материала. В зависимости от требуемых свойств материал может быть стальным сплавом или алюминиевым.
Обычно используемые стальные сплавы представляют собой сплавы хрома и никеля.
Конечный продукт не должен быть хрупким. Следовательно, никелевые или хромовые сплавы повышают прочность шатуна.
7. Металлические шатуны с электроприводом
Шатуны также изготавливаются из силового металла, поскольку это подходящий выбор для производителей. Его готовят из смеси металлических порошков, которую прессуют в форму и нагревают до высокой температуры. Эта смесь превратилась в твердую форму.
Может потребоваться легкая механическая обработка, но продукт в основном выходит из готовой формы. Шатуны из порошкового металла дешевле стали и прочнее литых.
Неисправности шатунов
Шатун часто подвергается воздействию больших повторяющихся усилий при каждом вращении коленчатого вала. Эти создаваемые силы пропорциональны скорости вращения двигателя (об/мин). Пока шатун непрерывно работает в коленчатом валу, он может повредиться или сломаться. Ниже приведены неисправности шатуна:
- Усталость
- Гидроблокировка
- Превышение оборотов
- Выход из строя пальца
1.
УсталостьУсталость часто возникает из-за того, что во время процесса большую часть времени происходит сжатие и растяжение стержня. В конечном итоге это приводит к износу стержня вплоть до его поломки. Недостаток масла и наличие грязи в двигателе могут усугубить эту проблему.
Это наиболее распространенный тип дефекта, который часто встречается и в старых двигателях. Если двигатель перестроен, вы также можете испытывать усталость при добавлении нового двигателя. Ну, это происходит, когда используются дешевые детали или неправильные детали.
2. Гидроблокировка
Гидроблокировка возникает, когда вода попадает в камеру поршня, вызывая деформацию шатуна. Это может произойти, когда транспортные средства проезжают по затопленной дороге.
Небольшая капля воды в цилиндре может вызвать стук или постукивание в двигателе. Это можно легко исправить. Но если в цилиндре слишком много воды, искра в течение определенного периода времени будет повсюду, что приведет к наклону или поломке штока цилиндра.
3. Превышение оборотов
Избыточный бред — еще одна неисправность шатуна. Это происходит в новых и высокопроизводительных двигателях. Если тахометр показывает красный цвет, это указывает на то, что положение шатуна находится в опасности. Это связано с тем, что силы, действующие на шатун, резко возрастают при более высоких оборотах.
4. Выход из строя пальца
Иногда поршневой палец также повреждается, что приводит к катастрофическому отказу двигателя. Это происходит при перемещении шатуна в блок цилиндров или при искривлении коленчатого вала.
В некоторых двигателях может привести к значительной потере мощности. Двигатель немедленно останавливается, когда штифт ломается из-за этой проблемы. Есть вероятность, что двигатель уцелел, иначе может произойти полная поломка.
Применение шатунов
Это часть поршневого двигателя, которая соединяет поршень с коленчатым валом. Шатун преобразует возвратно-поступательное движение поршня во вращение коленчатого вала.
Шатуны применяются в различных двигателях автомобилей. Шатун используется во всех типах транспортных средств, таких как автомобили, грузовики и велосипеды. Кроме того, он также используется в строительных машинах, таких как бульдозеры, дорожные катки (землеройные машины).
Поэтому в современную эпоху все типы машин неизбежно зависят от поршней, шатунов и коленчатых валов. Эти компоненты необходимы для точного функционирования двигателя внутреннего сгорания.
Заключение
В двигатель с более длинным шатуном можно установить поршень меньшего размера и легче. Преимущество этого заключается в том, что он уменьшает переменную массу для безопасности и снижает износ компонентов. Вот и все, спасибо за чтение.
Итак, теперь я надеюсь, что вы понимаете все о Соединительные стержни . Но, если у вас все еще есть сомнения по теме « Типы шатунов », вы можете задать их в комментариях. Если эта статья оказалась для вас полезной, поделитесь ею с друзьями.
Вы также можете скачать PDF-файл этой статьи, нажав ниже.
Скачать PDF
Подпишитесь на нашу рассылку, чтобы получать уведомления о наших последних статьях. Это бесплатно.
Адрес электронной почты
Вы можете узнать больше в нашем блоге:
- Что такое распределительный вал? Детали, применение, схема [PDF]
- Список деталей автомобильных двигателей (с иллюстрациями)
- Тормозная система: работа, типы, детали, конструкция.
Артикул:
- Шатун разъемного типа – Freepatentsonline.com
- https://en.wikipedia.org/wiki/Connecting_rod
Часто задаваемые вопросы
Как работает шатун?
Шатун представляет собой соединение между поршнем и коленчатым валом. Он соединяет поршневой палец с шатунной шейкой. Использование шатуна заключается в преобразовании прямолинейного движения поршня во вращательное движение коленчатого вала 9.
0003
Из каких частей состоит шатун?
Шатуны состоят из таких частей, как малая головка, большая головка, втулка, вкладыши подшипника
Болт и гайка, хвостовик, поршневой палец, поршень и крышка подшипника.
Какие бывают типы шатунов?
Ниже приведены типы шатунов, используемых в различных типах двигателей: шатун простого типа
шатун с вилкой и лопастью, ведущий и ведомый шатуны, шатуны из заготовки, литые шатуны, кованые шатуны и приводные металлические шатуны.
Каково применение шатуна?
Шатуны применяются в различных двигателях автомобилей. Шатун используется во всех типах транспортных средств, таких как автомобили, грузовики и велосипеды. Кроме того, он также используется в строительных машинах, таких как бульдозеры, дорожные катки (землеройные машины).
Шатуны
Вы находитесь здесь: Главная / Силовая установка / Авиационные двигатели / Шатуны
Рубрики: Авиационные двигатели
Шатун — это звено, передающее усилия между поршнем и коленчатым валом.
[Рисунок 1-10] Шатуны должны быть достаточно прочными, чтобы оставаться жесткими под нагрузкой, и в то же время быть достаточно легкими, чтобы уменьшить силы инерции, возникающие, когда шток и поршень останавливаются, меняют направление и снова начинают движение в конце каждого хода.
Существует четыре типа узлов шатуна [Рис. 1-11]:
1. Плоский
2. Вилка и нож
3. Главный и шарнирный
4. Разъемный
Узел основного и шарнирного стержня
Узел основного и шарнирного стержня обычно используется в радиальных двигателях. В радиальном двигателе поршень в одном цилиндре в каждом ряду соединен с коленчатым валом главной тягой. Все остальные поршни в ряду соединены с главным штоком с помощью шарнирных штоков. В 18-цилиндровом двигателе с двумя рядами цилиндров имеется два главных штока и 16 шарнирных штоков. Шарнирные стержни изготовлены из кованого стального сплава I- или H-образной формы, обозначающей форму поперечного сечения.
Бронзовые втулки запрессованы в отверстия на каждом конце шарнирного стержня, чтобы обеспечить подшипники поворотного кулака и поршневого пальца.
Главный шатун служит связующим звеном между поршневым пальцем и шатунной шейкой. Конец шатуна или большой конец содержит шатунный подшипник или главный шатунный подшипник. Фланцы вокруг большого конца обеспечивают крепление шарнирных стержней. Шарнирные стержни крепятся к ведущему стержню с помощью шарнирных пальцев, которые при сборке запрессовываются в отверстия во фланцах ведущего стержня. Подшипник скольжения, обычно называемый втулкой поршневого пальца, устанавливается на поршневой конец главного штока для приема поршневого пальца.
При использовании коленчатого вала с разъемными шлицами или разъемным зажимом используется цельный основной шатун. Ведущий и шарнирный шатуны собираются, а затем устанавливаются на шатунную шейку; затем секции коленчатого вала соединяются вместе. В двигателях с неразъемным коленчатым валом большой конец главного шатуна разделен, как и подшипник главного шатуна.
Основная часть ведущей тяги установлена на шатунной шейке; затем крышка подшипника устанавливается на место и прикручивается к главной тяге. Центры поворотных цапф не совпадают с центром шатунной шейки. Таким образом, в то время как центр шатунной шейки описывает истинную окружность для каждого оборота коленчатого вала, центры поворотных цапф описывают эллиптическую траекторию. [Рис. 1-12] Эллиптические траектории симметричны относительно центральной линии, проходящей через главный штоковый цилиндр. Видно, что большие диаметры эллипсов не совпадают. Таким образом, тяги тяг имеют разную степень угловатости относительно центра кривошипа.
Из-за разного угла наклона соединительных тяг и эллиптического движения поворотных пальцев все поршни не перемещаются на одинаковую величину в каждом цилиндре при заданном числе градусов поворота кривошипа. Это изменение положения поршня между цилиндрами может иметь значительное влияние на работу двигателя.
Чтобы свести к минимуму влияние этих факторов на клапан и угол опережения зажигания, отверстия под палец во фланце главного шатуна не равноудалены от центра шатуна, тем самым в некоторой степени компенсируя влияние угловатости шатуна.
Другим методом сведения к минимуму неблагоприятного воздействия на работу двигателя является использование компенсированного магнето. В этом магнето кулачок прерывателя имеет количество выступов, равное количеству цилиндров двигателя. Чтобы компенсировать изменение положения поршня из-за угловатости соединительной тяги, выступы кулачка прерывателя отшлифованы с неравномерным шагом. Это позволяет контактам прерывателя размыкаться, когда поршень находится в правильном положении зажигания.
Поворотные пальцы
Поворотные пальцы имеют прочную конструкцию, за исключением масляных каналов, просверленных в пальцах, которые смазывают втулки поворотных пальцев. Эти штифты могут быть установлены путем вдавливания в отверстия во фланцах главного стержня, чтобы предотвратить их проворачивание в главном стержне.
Штифты поворотных кулаков также могут быть установлены со свободной посадкой, чтобы они могли поворачиваться в отверстиях фланцев главного стержня, а также вращаться во втулках шарнирного стержня. Они называются полностью плавающими шарнирными пальцами. В любом типе установки стопорная пластина с каждой стороны удерживает цапфу и предотвращает боковое смещение.
Плоские шатуны
Плоские шатуны используются в рядных и оппозитных двигателях. Конец шатуна, прикрепленный к шатунной шейке, оснащен крышкой и подшипником, состоящим из двух частей. Крышка подшипника удерживается на конце стержня болтами или шпильками. Для обеспечения надлежащей посадки и балансировки шатуны всегда следует заменять в одном и том же цилиндре и в одном и том же относительном положении.
Шток вилки и ножа в сборе
Шток вилки и ножа в сборе используется в основном в двигателях V-образного типа. Вилкообразный стержень разделен на конце шатунной шейки, чтобы между зубцами можно было разместить стержень лопасти.
Одинарный подшипник, состоящий из двух частей, используется на конце коленчатого вала шатуна. Этот тип шатуна мало используется в современных двигателях.
Справочник частного пилота Рода Мачадо — Летная грамотность рекомендует продукты Рода Мачадо, потому что он берет то, что обычно сухо и утомительно, и преображает это с помощью своего характерного юмора, помогая вам оставаться вовлеченным и дольше запоминать информацию. (см. все продукты Рода Мачадо).
Для чего нужен шатун и почему? – SageAdvices
Содержание
- 1 Для чего нужен шатун и почему?
- 2 Какова функция шатуна и маховика?
- 3 Где шатуны?
- 4 Как шатун соединяется с поршнем?
- 5 Шатуны изнашиваются?
- 6 Растягиваются ли шатуны?
- 7 Каково основное назначение шатуна?
- 8 К чему присоединяется шатун в автомобиле?
- 9 Как шатуны крепятся к поршню?
Для чего нужен шатун и почему?
Шатун — это часть поршневого двигателя, которая соединяет поршень с коленчатым валом.
Шатун вместе с кривошипом преобразует возвратно-поступательное движение поршня во вращение коленчатого вала. Шатун необходим для передачи сжимающих и растягивающих усилий от поршня.
Какова функция шатуна и маховика?
Шатун — это компонент двигателя, который передает движение от поршня к коленчатому валу и функционирует как плечо рычага. Шатуны обычно изготавливаются из литого алюминиевого сплава и рассчитаны на то, чтобы выдерживать динамические нагрузки от сгорания и движения поршня.
Где шатуны?
Шатун установлен на шатунной шейке коленчатого вала с подшипником скольжения. Крышка шатунного подшипника прикручена болтами к большой головке. В большинстве случаев шатун является полым или имеет внутренний литой масляный канал для подачи смазки на поршневой палец.
Что происходит, когда выходит из строя шатун?
Шатуны в вашем двигателе — это компоненты, которые поддерживают поршень, когда он перемещается вверх и вниз внутри отверстия цилиндра в блоке.
При вращении коленчатого вала шатун также вращается, толкая поршень вверх и вниз. Плохой шатун или шатунный подшипник в конечном итоге разрушит двигатель.
Что вызывает поломку шатуна?
Что вызывает поломку шатуна? Распространенными причинами выхода из строя шатуна являются разрушение при растяжении при высоких оборотах двигателя, сила удара, когда поршень ударяет по клапану (из-за проблемы с клапанным механизмом), выход из строя шатунного подшипника (обычно из-за проблем со смазкой или неправильной установки шатуна.
Как шатун соединяется с поршнем?
Поршень крепится к шатуну с помощью короткой полой трубки, называемой поршневым пальцем или поршневым пальцем. при горении действуют не только вертикальные силы, но и боковые силы, вызванные постоянно изменяющимся углом наклона шатуна.0003
Шатуны изнашиваются?
Усталость является основной причиной поломки шатунов, особенно в старых двигателях. Постоянное сжатие во время рабочего такта и растяжение во время такта выпуска, происходящее более тысячи раз в минуту, в конечном итоге изнашивает металл, он становится хрупким и, наконец, ломается.
Растягиваются ли шатуны?
Измерить растяжение шатуна несложно, но для этого необходимо использовать измеритель растяжения, который можно приобрести в ARP и других источниках. «Если болт недостаточно растянут, силы зажима будет недостаточно, чтобы удержать стержень на месте. Это может привести к прокручиванию подшипника или поломке болта.
Как шатун крепится к поршню?
Что такое шатун и для чего он?
Шатун, также называемый шатуном, представляет собой часть поршневого двигателя, которая соединяет поршень с коленчатым валом. Шатун вместе с кривошипом преобразует возвратно-поступательное движение поршня во вращение коленчатого вала.
Каково основное назначение шатуна?
Шатуны соединяют коленчатый вал с поршнями и необходимы для правильного функционирования двигателя внутреннего сгорания. Целью шатуна является обеспечение движения жидкости между поршнями и коленчатым валом. Шатуны широко используются в автомобилях с двигателями внутреннего сгорания.

29